EasyManua.ls Logo

Allen-Bradley 1769-L33ERM

Allen-Bradley 1769-L33ERM
88 pages
To Next Page IconTo Next Page
To Next Page IconTo Next Page
To Previous Page IconTo Previous Page
To Previous Page IconTo Previous Page
Loading...
6 Rockwell Automation Publication IASIMP-QS023B-EN-P - December 2012
Where to Start
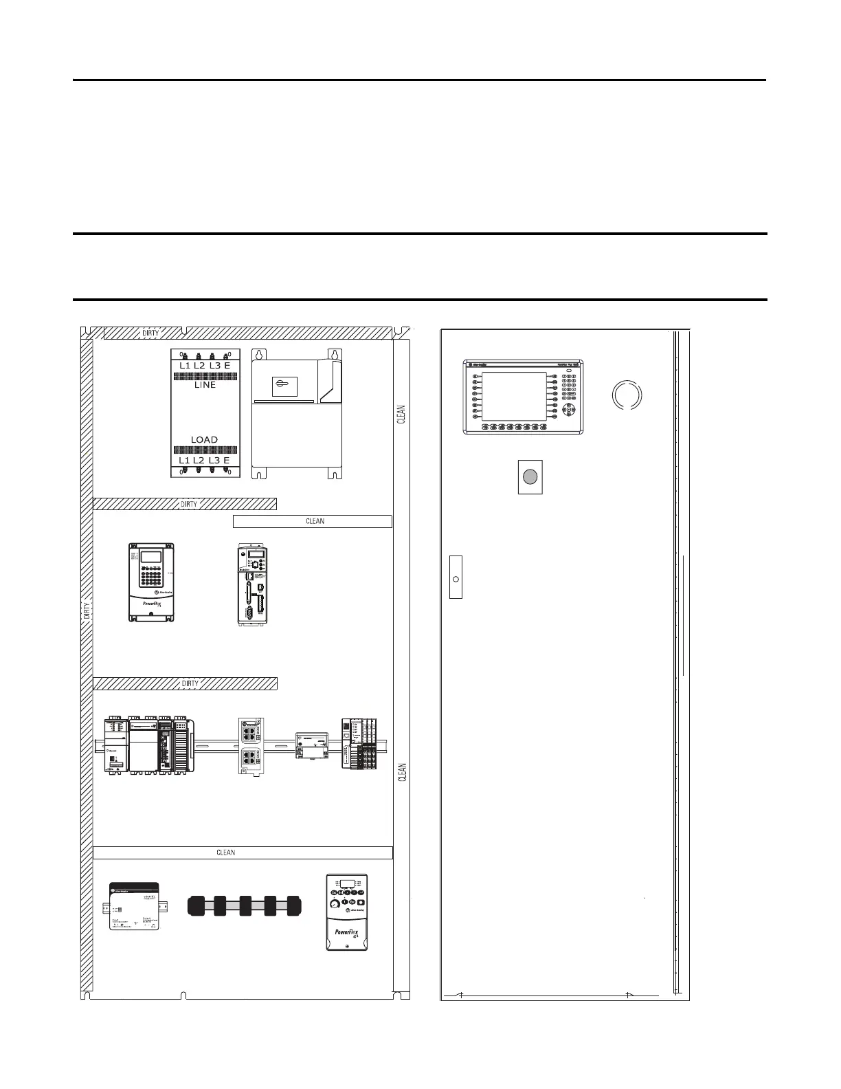
Sample Panel Layout
The sample panel layout shows the orientation of an example CompactLogix 5370 L3 control
system using EtherNet/IP networks and DeviceNet networks.
IMPORTANT
The specific layout of CompactLogix 5370 L3 control systems varies by application. The following graphic is an example
panel layout. The graphic shows a PowerFlex 40 drive used on a DeviceNet network. You can also use a PowerFlex 40
drive on an EtherNet/IP network.
1 (Front)1 (Front)1 (Front)
2 (Rear)

Table of Contents

Other manuals for Allen-Bradley 1769-L33ERM

Related product manuals