EasyManua.ls Logo

Alpha ARES 440 Tec - Page 56

Alpha ARES 440 Tec
60 pages
Print Icon
To Next Page IconTo Next Page
To Next Page IconTo Next Page
To Previous Page IconTo Previous Page
To Previous Page IconTo Previous Page
Loading...
53
VI
VIOLA
0
1
2
3
4
5
6
7
8
9
4
5
6
. 2)
0
1
2
3
4
5
6
7
8
9
MOD. 4
(POS . 3)
0
1
2
3
4
5
6
7
8
9
MOD. 5
(POS . 4)
0
1
2
3
4
5
6
7
8
9
MOD. 6
(POS . 5)
0
1
2
3
4
5
6
7
8
9
MOD. 7
(POS . 6)
Al / To conn.
A4 scheda alim. /
A4 power supply
VG
mod.
1
YG
R
E. ACC . 1
2° - 8° Mod.
BL
BK
VM (A)
LB
RB
GY
Last Module
VM (A)
LB
RB
GY
LB
KB
BL
YG
BR
BL
YG
BR
WH
VM
E. RIL. 2 - 8
(R)
BK
2-8
BL
BR
OR
FL
BK
BR
WH
SR
2-8
SL
TL
OR
2-8
OR
WH
WH
WH
BR
L BL
L BL
mod.
3° - 8°
mod.
2 - 8
YG
R
E. ACC . 2-8
BR
BL
YG
BL
BR
YG
KP
G
G
KP
4
2
T.ACC .
1
T.ACC .
2 - 8
MMB
VG
FILTER
Intermediate
BL
FILTE R
BK
0
1
2
3
4
5
6
7
8
9
MOD. 8
(POS . 7)
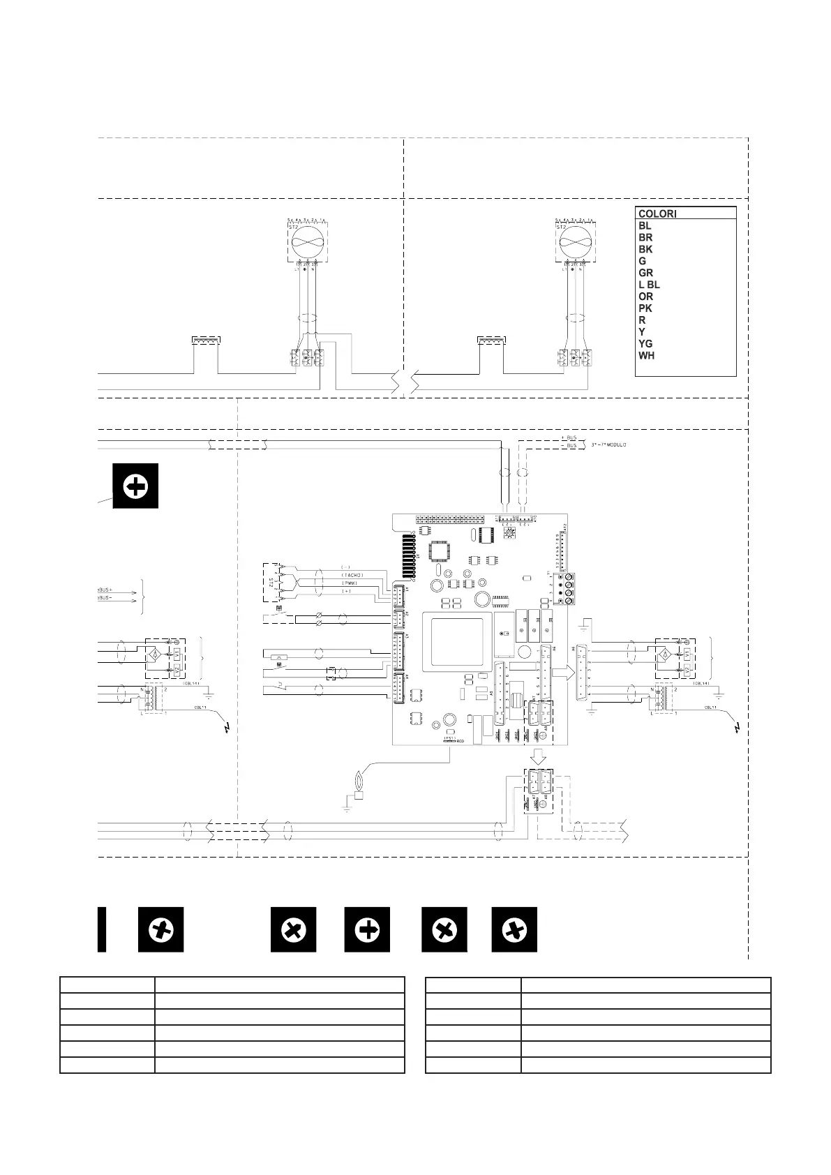
Inspections and maintenance
INGR. ANALOG. Analogue input
GND 0-10V ING 0-10 V analogue input
0-10V C.P.M. Modulating Pump Control
ALLARM SIGNAL Alarm Outlet
Comm. P. COLL Boiler manifold pump control
Comm. P. CH Central heating pump control
P. car DHW Storage tank load pump control
COM. Common
IG Main switch
TLG General limit thermostat
LTLG Limit thermostat lamp
F Fuse
BLUE
BROWN
BLACK
GREEN
GREY
LIGHT BLUE
ORANGE
PINK
RED
YELLOW
YELLOW / GREEN
WHITE
PURPLE

Related product manuals