EasyManua.ls Logo

Alpine 7294R - Page 51

Alpine 7294R
51 pages
Print Icon
To Previous Page IconTo Previous Page
To Previous Page IconTo Previous Page
Loading...
rrr
inections/Anschliisse/Connexions/Collegamenti/Conexiones/Anslu
To
ine
Audio
Interrupt
in
Lead
of
anuther
unit
Ao
de
Tonunterbrechung
innealeiluag
eines
anderen
Gerats
Aun
fi
d’entree
de
sourdine
audw
d'une
auve
unité
Al
fo
di
ingresso
deil'interruzione
del
suone
di
un
altro
componente
(Pink/White)
AUDIO
A
ur
cable
de
enteada
de
intercupior
de
audio
de
otra
uniiad
(RosaiWeiB)
INTERRUPT
@
Tal
agdngshabeln
far
fjudavbrutt
G8
en
anean
apparal
OUT
Audiounterbrechungs-Ausgang
Tus
power
antenna/Zu
Power-Ant
(m=
vers
Pantenne
de
puissance/All’gntenna
di
potenza
(Blue}
Ala
antena
electrica/Titl
el-antecin
(Blau)
POWER
ANT
8)
Leistungsantenne
To
vanicle
phone/Zu
dem
Telephon
des
Fahrzeuges
Vers
te
teleptione
du
vehicule
Al
tei¢fono
del
veicolo/
Al
i¢léfune
det
vehiculo
{Pink/White)
AUDIO
Till
taltetefon
{Rosa/Weit)
INTERRUPT
s
To
eunmer
contra
lead
ie
~The
Audiounterbrechungs-Eingang
Zur
Aelligkeits
Steuerieitung
a
i
Vers
le
conducteur
de
commande
du
gtadateur
0)
.
Al
tiiy
di
controtio
def
dimmer
TOGHADGER
(White/Blue)
chances
Al
cable
de
conual
del
reductur
de
tus
(Wei/Blau)
CONTROL
Till
kabie
for
dampning
av
belysningen
Auf
Wechsler
To
amplifier
or
equalizer
Abbiendreget
Zu
Verstarker
oder
Equalizer
Vers
Vampliftcateur
ou
l'egatiseur
ignition
Key
{Blue/White}
Al'amplificatore
o
all’equalizzetore
Zundschlusvel
(Blau/Weik)
REMOTE
ON
®
Al
arsplificador
o
al
ecualizador
Cle
de
contact
Till
ferstackare
eller
equalizer
Cniave
di
accensione
Llave
de
encendido
Ein-Fernleitung
Tandnycket
IGNITION
(i)-<==-
LINE
OUT
REAR
a9)
a
Hinter
Ausgang
Zandung
(Yellow;
{Geld}
BATTERY
‘Batterie
Battery
Batterie
Batterie
Batteria
Bateria
Batteri
Linker
Linker
Linker
Rechter
Rechter
Rechter
Lautsprecher
Lautsprecher
Lautsprecher Lautsprecher Lautsprecher
Lautsprecher
(vorne}
(2)
thinteny
thinten)
(So)
tvorne}
SPEAKER
SPEAKER
SPEAKER
SPEAKER
SPEAKER
SPEAKER
LEFT
LEFT
LEFT
RIGHT
RIGHT
RIGHT
FRONT
oO
REAR
REAR
6)
FRONT
White
White/Biack
Green
Violet
Grey/Biack
Grey
Weil
WeiB/Schwarz
Gran
Violett
Grau/
Schwarz
Grau
Green/Black
Violeu
Biack
A
Griin/
Schwarz
i
Viorety
Schwarz
a
fh
®
of
Front
lett
Vorne
tinker
Devant
gauche
Anteriore
sinistro
Delantero
izquierdo
Vanster
hdgtalare
fram
Front
right
Vorne
rechter
Devant
droit
Anteriore
destro
Delantero
derecho
Héger
hégtalare
fram
Speakers
Lautsprechern
Haut-parleurs
Altoparlanti
Rear
eft
OF
Attavoces
GP
FO
hear
cight
Hinten
tinker
Hogtalare
Hinten
rechter
BR
REMOTE
ON
[Blue
White
(Blau:Weis)
Arriére
gauche
Arrigie
droit
IA]IN
PAUSE
[Brown'Whie
(Braun'weis)
|
Posteriore
sinistro
Zz
Posteriore
destro
[El
BaTTERY
Trasero
izquierdo
Trasero
derecho
[4]
IGNITION
Ried
(Rol)
Vanster
hdégtalare
bak
Hoger
hogtalare
bak
(@)
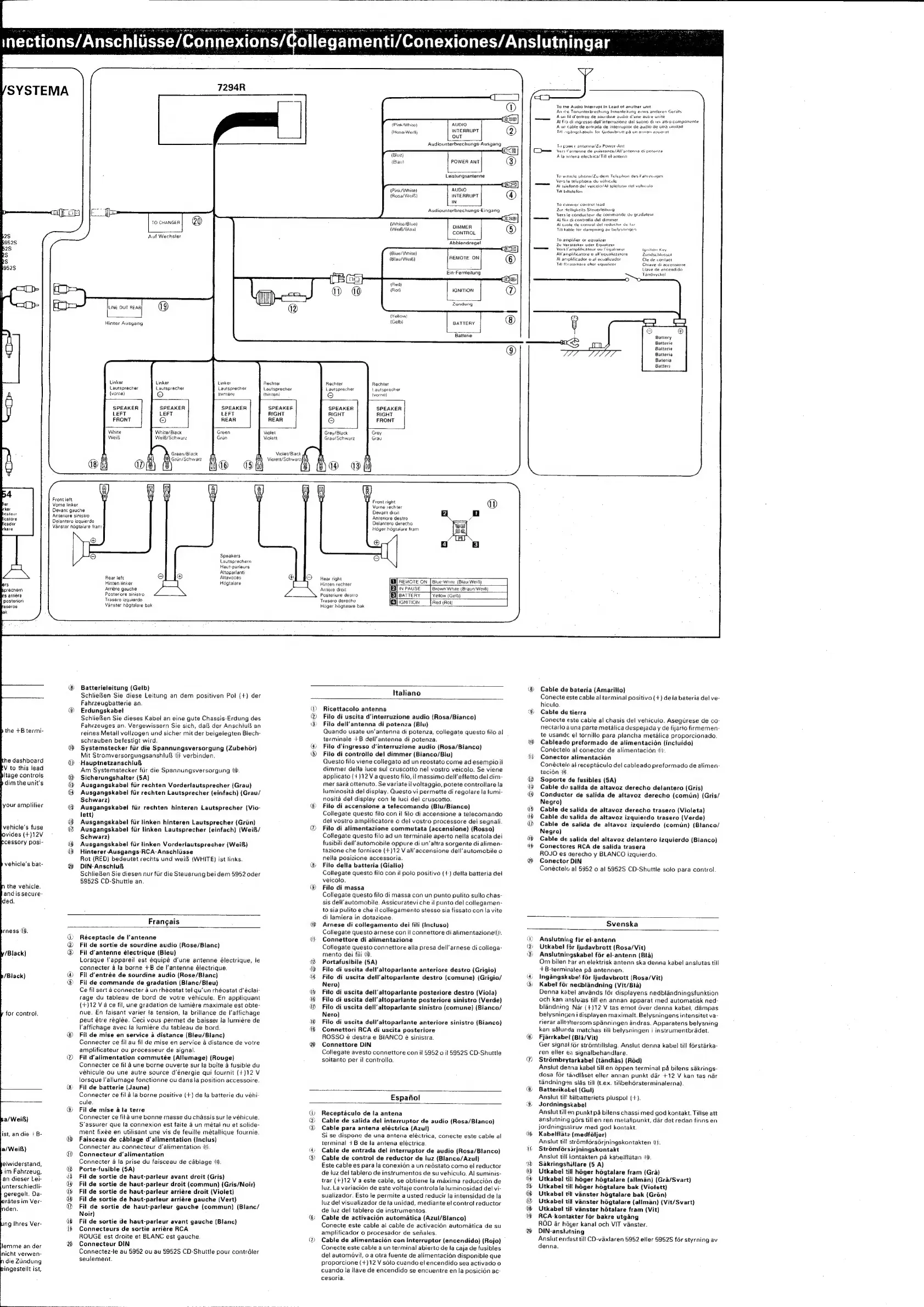
Batterieleitung
(Gelb)
‘8
Cable
de
bateria
(Amarillo)
eonlletat
Sie
diese
Leitung
an
dem
positiven
Pol
(+)
der
Italiano
Conecte
este
cable
al
terminal
positivo
(+)
de
la
bateria
del
ve-
ahrzeugbatterie
an.
;
f
hiculo.
@.
Erdungekabel
(P
Ricettacolo
antenna
‘9
Cable
de
tierra
SchlieBen
Sie
dieses
Kabel
an
eine
gute
Chassis-Erdung
des
@
Filo
di
uscita
d'interruzione
audio
(Rosa/Bianco)
Conecte
este
cable
al
chasis
del
vehiculo,
Asegurese
de
co-
haces
iaerni
Fahrzeuges
an.
Vergewissern
Sie
sich,
dal
der
Anschlufs
an
oe
GG
ieee
ene
adilaaats
ane
tle
al
nectarloauna
parte
metalica
despejada
y
de
fijario
firmemen-
reines
Metall
vollzogen
und
sicher
mit
der
beigelegten
Blech-
,
6
Pi
"
gate
q'
04
te
usandc
el
tornillo
para
plancha
metalica
proporcionado.
schrauben
befestigt
wird.
;
terminale
+B
dell’antenna
di
potenza.
7
49
Cableado
preformado
de
alimentacion
(incluido)
{)
Systemstecker
fir
die
Spannungsversorgung
(Zubehér}
ay
Filo
d'ingresso
d
interruzione
audio
(Rosa/Bianco)
Conéctela
al
conector
de
alimentacion
dt,
Mit
Stromversorgungsanshlu&
¢)
verbinden.
Filo
di
controllo
del
dimmer
(Bianco/Blu)
ar
i}
Conector
atimentacion
ersten
d>
Hauptnetzanschlu&
Questo
filo
viene
collegato
ad
un
reostato
come
ad
esempio
il
Conéctel«
al
receptaculo
del
cableado
preformado
de
alimen-
0
this
lead
Am
Systemstecker
fur
die
Spannungsversorgung
40.
dimmer
della
luce
sul
cruscotto
nel
vostro
veicolo.
Se
viene
tacion
1
pitage
controls
4
Sicherungshalter
(5A)
applicato
(4
)12V
a
questo
filo,
il
massimo
dell’effetto
del
dim-
Soporte
de
fusibles
(SA)
p
dim
the
unit's
@&
Ausgangskabel
fiir
rechten
Vorderlautsprecher
(Grau)
mer
sara
ottenuto.
Se
variate
il
voltaggio,
potete
controllare
la
9
Cable
de
salida
de
altavoz
derecho
delantero
(Gris)
@
Ausgangskabel
fir
rechten
Lautsprecher
(einfach)
(Grau/
luminosita
del
display.
Questo
vi
permette
di
regolare
la
lumi-
‘)
Conducter
de
salida
de
altavoz
derecho
(comin)
(Gris/
os
Schwarz)
nosita
del
display
con
fe
luci
del
cruscotto.
Negro)
your
amplifier
(3
Ausgangskabel
fiir
rechten
hinteren
Lautsprecher
(Vio-
@
Filo
di
accensione
a
telecomando
(Blu/Bianco)
(2
Cable
de
salida
de
altavoz
derecho
trasero
(Violeta)
lett)
Collegate
questo
fito
con
il
filo
di
accensione
a
telecomando
Cable
de
salida
de
altavoz
izquierdo
trasero
(Verde)
;
dS
Ausgangskabe!
fir
linken
hinteren
Lautsprecher
(Grin)
_
del
vostro
amplificatore
o
det
vostro
processore
dei
segnali.
@
Cable
de
salida
de
altavoz
izquierdo
(comun)
(Blanco/
vehicle's
fuse
Ausgangskabel
fir
linken
Lautsprecher
(einfach)
(Wei8/
@
Filo
di
alimentazione
commutata
(accensione)
(Rosso)
Negro)
ovides
tk)
2y
_
Schwarz)
_
;
Collegate
questo
filo
ad
un
terminale
aperto
nella
scatola
dei
0%
Cable
de
salida
del
altavoz
delantero
izquierdo
(Blanco)
C@SSOry
POs!
ig
Ausgangskabel
fir
linken
Vorderlautsprecher
(Weif)
fusibili
dell’automobile
oppure
di
un‘altra
sorgente
di
alimen-
4%
Conectores
RCA
de
salida
trasera
@
Hinterer-Ausgangs-RCA-Anschlisse
tazione
che
fornisce
(+)12
V
all’accensione
dell’automobile
o
ROJO
es
aerecho
y
BLANCO
izquierdo
.
Rot
(REO)
bedeutet
rechts
und
wei
(WHITE)
ist
links.
__
Nella
posizione
accessoria.
@
Conector
DIN
,
vehicle's
bat-
@
DIN-Anschlu&
‘8
Filo
della
batteria
(Giallo)
Conéctele
al
5952
0
at
952S
CD-Shuttle
solo
para
control
SchlieBen
Sie
diesen
nur
fur
die
Steuerung
bei
dem
5952
oder
Collegate
questo
filo
con
il
polo
positivo
(+)
delta
batteria
del
:
5952S
CD-Shuttle
an.
veicolo.
the
vehicle.
{9
Filo
di
massa
andis
secure-
Collegate
questo
filo
di
massa
con
un
punto
pulito
sullo
chas-
ded.
sis
dell’automobile.
Assicuratevi
che
il
punto
del
collegamen-
to
sia
pulito
e
che
il
collegamento
stesso
sia
fissato
con
la
vite
F
di
lamiera
in
dotazione.
=F
Frangais
i@
Arnese
di
collegamento
dei
fili
(Incluso)
Svenska
ress
0.
|
;
Collegate
questo
arnese
con
il
connettore
di
alimentazione‘.
w@
Réceptacle
de
l'antenne
dl
Connettore
di
alimentazione
iD
Anslutnirg
for
el-antenn
@
Fil
de
sortie
de
sourdine
audio
{Rose/Blanc)
Collegate
questo
connettore
alla
presa
dell’arnese
di
collega-
21
Utkabel
fr
Ijudavbrott
(Rosa/Vit)
by
/Black)
Fild
antenne
électrique
(Bleu)
; ,
_
mento
dei
fili
@.
®
Anstutningskabel
for
el-antenn
(Bla)
Lorsque
|
appareil
est
équipé
d'une
antenne
électrique,
le
Portafusibile
(5A)
Om
bilen
bar
en
elektrisk
antenn
ska
denna
kabel
anslutas
till
=
connecter
a
la
borne
+B
de
l'antenne
électrique.
Filo
di
uscita
deli‘altoparlante
anteriore
destro
(Grigio)
+
B-terminaiea
pa
antennen.
/Black}
-
rt
gid
de
pata
ites
iolareieien
Filo
di
uscita
dell’altoparlante
destro
(comune)
(Grigio/
‘47
Ingangskabet
for
Ijudavbrott
(Rosa/Vit)
‘©
Fil
de
commande
de
gradation
(Blanc/Bieu
:
nt
Nero)
&
Kabel
for
necblandning
(Vit/Bla)
Ce
fil
sert
4
connecter
aun
rhéostat
tel
qu'un
théostat
d’eclai-
Filo
di
uscita
dell
altoparlante
posteriore
destro
(Viola}
Denna
kabel
anvands
fér
displayens
nedblandningsfunktion
rage
du
tableau
de
bord
de
votre
vehicule.
En
appliquant
Filo
di
uscita
dell’altopariante
posteriore
sinistro
(Verde)
och
kan
ansluias
till
en
annan
apparat
med
automatisk
ned-
(+)12
V
a
ce
fil,
une
gradation
de
lumiére
maximale
est
obte-
Fito
di
uscita
dell’altoparlante
sinistro
(comune)
(Bianco/
blandning
Nar
(+)12
V
tas
emot
éver
denna
kabel,
dampas
for
control.
nue.
En
faisant
varier
Ja
tension,
la
brillance
de
l’affichage
Nero)
belysningen
i
displayen
maximalt.
Belysningens
intensitet
va-
peut
étre
réglée.
Ceci
vous
permet
de
baisser
la
lumiére
de
1g
Filo
di
uscita
dell‘altoparlante
anteriore
sinistro
(Bianco)
rierar
alltettersom
spanningen
andras.
Apparatens
belysning
fe
tl
affichage
avec
la
lumiére
du
tableau
de
bord.
i%
Connettori
RCA
di
uscita
posteriore
__
kan
salueda
matchas
till
belysningen
i
instrumentbradet.
©
Fil
de
mise
en
service
a
distance
(Bleu/Blanc)
ROSSO
é
destra
e
BIANCO
é
sinistra.
@
Fjarrkabel
(B13/Vit)
Connecter
ce
fil
au
fil
de
mise
en
service
&
distance
de
votre
@
Connettore
DIN
Ger
signal
fér
strémtiltslag.
Anslut
denna
kabel
till
forstarka-
=
amplificateur
ou
processeur
de
signal.
Collegate
avesto
connettore
con
it
5952
o
it
5952S
CD-Shuttle
_
fen
eller
€1
signalbehandlare.
@
te
d
pied
dada
aurea
cairaa
ie
soitanto
per
il
controllo.
©
Strémbrytarkabel
(tandtas)
(Rod)
volicule
ou
une
autre
souros
tSnerale:qut
louie
(4112
¥
dies
tor
budlioot
chet
roan
ae
et
ce
oe
if
r
‘as
Ai
auuacterte
is
es
ou
dans
la
position
accessoire.
_
tndningan
slas
till
(Lex.
sinbshsratermhinaleroal,
mace
@
Fil
de
batterie
(Jaune
(8
Batterikatel
(Gul
oe
ce
fil
4
la
borne
positive
(+)
de
ta
batterie
du
véhi-
Espanol
_
Anstut
til!
Sibenae
pluspol
(4).
cule.
‘%
Jordningsxabel
@
Filde
mise
a
la
terre
be
ms
@)
Receptaculo
de
la
antena
Anahirtiltan
punkt
pa
bilens
chassi
med
god
kontakt.
Tillse
att
a/Weif)
Areata
ep
tisaay
ee
un
techn
ae
@
Cable
de
salida
del
interruptor
de
audio
(Rosa/Blanco)
bettas
gors
tillen
ren
metalipunkt,
dar
det
redan
finns
en
hey
Gs
;
etal
|
1
®
Cable
para
antena
eléctrica
{Azul
jordningsskruy
med
god
kontakt.
ist,
an
die
+B-
"
ment
fixée
en
utilisant
une
vis
de
feuilte
métallique
fournie.
Si
se
Gina
‘dé‘und’antena
ped
ie
conecte
asta
vable
al
1d
Kabelflate
(medféljer)
(0
Faisceau
de
cablage
d
alimentation
(Inclus)
terminal
4B
de
la
antena
eléctrica.
-
Anslut
ult
stromforsdrjningskontakten
ap.
a/Weif)
.
Connecter
au
connecteur
d’alimentation
@b.
‘dy
Cable
de
entrada
del
interruptor
de
audio
(Rosa/Blanco)
Ws
Stromférsarjningskontakt
@
Connecteur
d
alimentation
;
|
®
Cable
de
control
de
reductor
de
luz
(Blanco/Azul)
Anslut
tll
kKontakten
pa
kabelflatan
49.
elwiderstand,
Connecter
a
la
prise
du
faisceau
de
cablage
‘0.
Este
cable
es
para
la
conexidn
a
un
redstato
como
el
reductor
W
Sakringshallare
(5
A)
im
Fahrzeug,
i
A
arene
nae
'
ga
:
de
juz
dei
tablero
de
instrumentos
de
su
vehicula.
Al
suminis-
43
Utkabel
aill
héger
hégtalare
fram
(Gra)
an
dieser
Lei-
7
i
7
sortie
.
re
eur
ey
roit
(Gris)
:
:
trar
(+)12
Va
este
cable,
se
obtiene
la
maxima
reduccién
de
ay
Utkabel
till
hoger
hogtalare
(allman)
(Gra/Svart)
unterschiedli-
is
Fil
de
sortie
de
haut-parleur
droit
(commun)
(Gris/Noir)
luz.
La
variacion
de
este
voltaje
controla
ta
luminosidad
del
vi-
iy
Utkabel
till
hoger
hogtalare
bak
(Violett)
geregelt.
Da-
Fil
de
sortie
de
haut-parleur
arriére
droit
(Violet)
sualizador.
Esto
le
permite
a
usted
reducir
la
intensidad
de
la
§
Utkabel
till
vanster
hégtalare
bak
(Gron)
erdtes
im
Ver-
&
Fil
de
sortie
de
haut-parleur
arriére
gauche
(Vert)
luz
det
visualizador
de
la
unidad,
mediante
el
control
reductor
W
Utkabel
till
vanster
hégtalare
(allman)
(Vit/Svart)
inden.
a
Fil
de
sortie
de
haut-parleur
gauche
(commun)
(Blanc/
de
luz
del
tablero
de
instrumentos.
®
Utkabel
till
vanster
hétalare
fram
(Vit)
é
aa
be
a
bat
ie
(lane)
@
Cable
de
activacion
automatica
(Azui/Blanco)
aw
RCA
-kontakter
for
bakre
utgang
ng
thres
Ver-
3
e
One
oy
eae
eur
ACA
gauehe:\Hrane
Conecte
este
cable
al
cable
de
activacién
automatica
de
su
,.
ROD
ar
hager
kanal
och
VIT
vanster.
°
AGUee
cocaine
ce
BLANC
sek
paueha
amplificador
o
procesador
de
sefiales.
%
DIN-anstutning
! .
;
ie
:
@
Cable
de
alimentacién
con
interruptor
(encendido)
(Rojo)
Anslut
endast
till
CD-vaxtaren
5952
eller
5952S
fér
styrning
av
lemme
an
der
%
Connecteur
DIN
Conecte
este
cable
a
un
terminal
abierto
de
la
caja
de
fusibles
denna.
Connectez-le
au
5952
ou
au
5952S
CD-Shuttie
pour
contréler
nicht
verwen-
del
automévil,
o
a
otra
fuente
de
alimentacion
disponibi
seulement.
ponible
que
die
Zindung
proporcione
(+}12
V
solo
cuando
el
encendido
sea
activado
o
pingestellt
ist,
cuando
la
lave
de
encendido
se
encuentre
en
la
posicién
ac-
cesoria.

Related product manuals