EasyManua.ls Logo

Ametek 5000

Ametek 5000
110 pages
To Next Page IconTo Next Page
To Next Page IconTo Next Page
To Previous Page IconTo Previous Page
To Previous Page IconTo Previous Page
Loading...
2-2 5000 Multi Point Moisture Analyzer
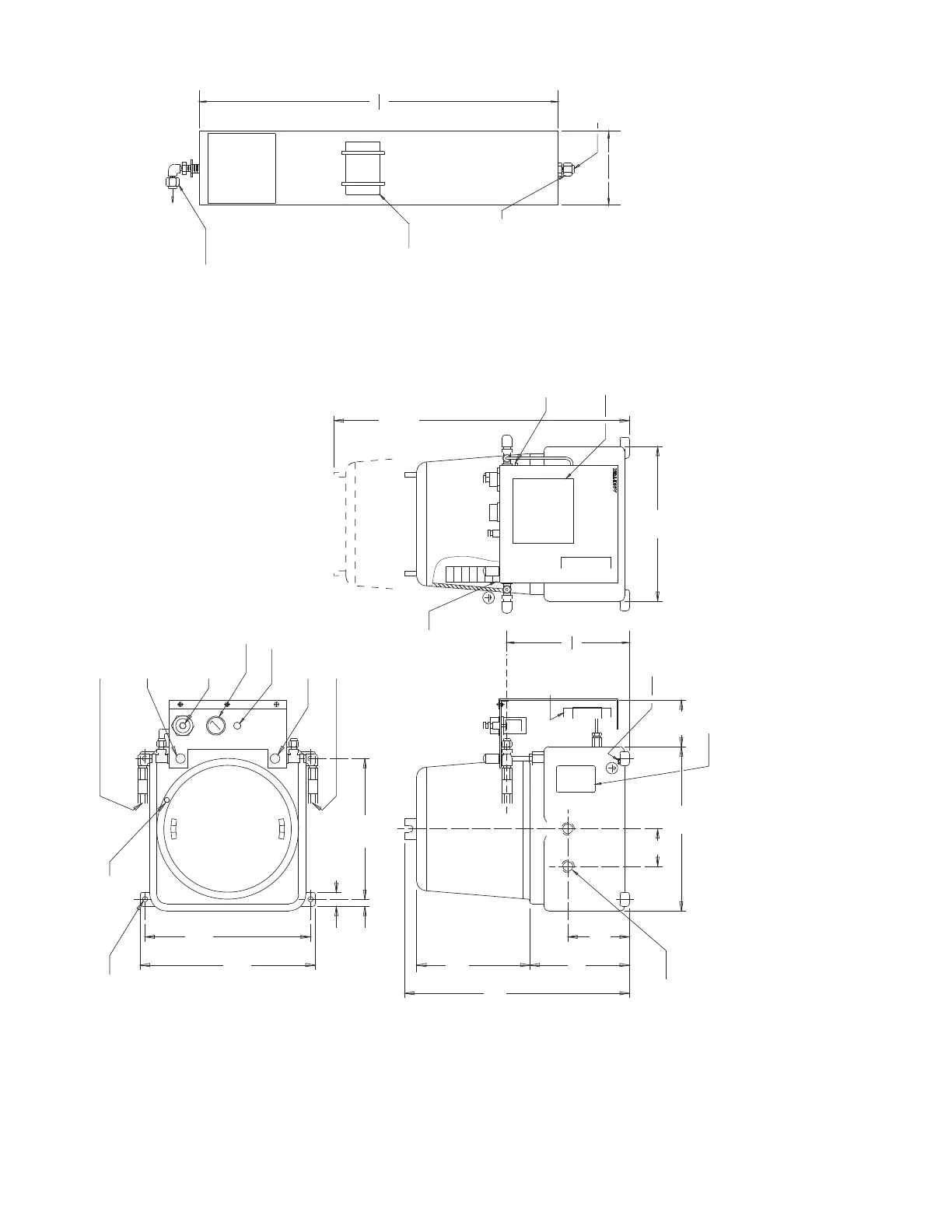
Figure 4: Installation / Dimensional Layout for 5000 Field Unit
GROUNDING LUG
3/4-14 NPT, 2 HOLES
SEE NOTE 2
GROUND CONNECTION
LOCATED BEHIND TB1
GENERATOR FLOW ADJUSTMENT
BACK PRESSURE GAUGE
FLOWMETER
CENELEC CERTIFICATION LABEL
WARNING
MAXIMUM PRESSURE
100 PSIG
DRYER
THIS END UP
DRY GAS OUT
(TO ANALYZER)
1/8" TB FITTING
SEE NOTES 2 & 5
WET GAS
I
1/8" TUBE FITTING
SEE NOTES 2 & 5
(12.9)
328
(3.25)
83
(17.0)
432
(7.68)
195
(4.75)
121
(8.5)
216
(4 PLACES)
(4 PLACES)
(0.78)
20
(1.56)
40
(10.75)
273
(14.50)
368
(12.81)
325
LOCKING SCREW
4 HOLES
11 (0.44) DIA
5 MM HEX
89
(3.5)
NOTES:
1. XXX DIMENSIONS ARE IN MILLIMETERS, (XXX) DIMENSION ARE IN INCHES
2. FERRULES AND NUTS ARE PACKED IN PLASTIC BAG AND ADHERED TO DRYER
3. CUSTOMER TO MOUNT DRYER CHAMBER TO 5000 ANALYZER FIELD UNIT
TO MINIMIZE TUBE LENGTHS.
4. POSITION VERTICALLY WITH END UP AS NOTED ON BODY.
5. REMOVE DRYER SEAL PLUGS AND INSTALL SUPPLIED NUTS AND FERRULES JUST PRIOR
TO INSTALLATION. MINIMZE INTERNAL CONTACT WITH AMBIENT MOISTURE. PROLONGED
EXPOSURE TO MOIST AIR MAY REDUCE DRYER LIFE.
6. THE SAME DRYER DIMENSIONS CAN BE USED FOR CONTAMINANT TRAP AND
SUPERACTIVATED MOLECULAR SIEVE DRYER.
7. FIELD UNIT EQUIPPED WITH CENELEC REQUIREMENTS PER EN50018.
LESS THAN 69 KPa (10 PSIG)
VENT TO APPROPRIATE AREA
EXHAUST TO VENT
1/4" MALE TUBE FITTING
(11.9)
302
CLEARANCE
MINIMUM
(28.0)
711
REFERENCE ADJUSTMENT
BACK PRESSURE ADJUSTMENT
SAMPLE ADJUSTMENT
1/8" NPT FEMALE
SAMPLE INLET
1/8" NPT FEMALE
REFERENCE INLET
(FROM CONDITIONED REFERENCE
SOURCE)
WARNING LABEL
TB1
WARNING
457
(18.0)
236
(9.3)
89 DIA.
(3.5)

Table of Contents

Other manuals for Ametek 5000

Related product manuals