EasyManua.ls Logo

Atag DW8114XT - Installatie; Veiligheidsinstructies; Instellingen

Atag DW8114XT
184 pages
Go to English
To Next Page IconTo Next Page
To Next Page IconTo Next Page
To Previous Page IconTo Previous Page
To Previous Page IconTo Previous Page
Loading...
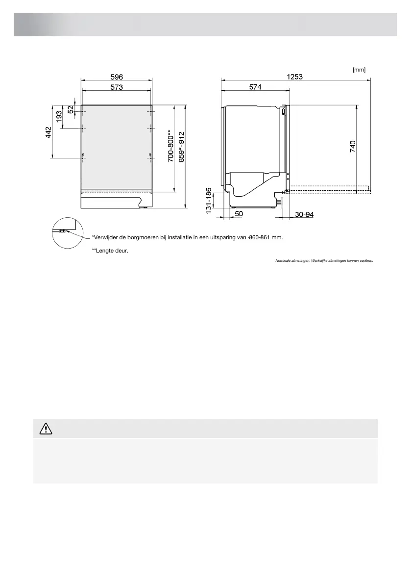
[mm]
Nominale afmetingen. Werkelijke afmetingen kunnen variëren.
*Verwijder de borgmoeren bij installatie in een uitsparing van -860-861 mm.
**Lengte deur.
Het is belangrijk dat u de onderstaande instructies en aanwijzingen goed doorleest en opvolgt. Voer
de installatie en aansluiting uit volgens de afzonderlijke installatievoorschriften.
Veiligheidsinstructies
Aansluitingen op elektriciteit, water en afvoer moeten door een erkende vakman worden
uitgevoerd.
Volg altijd de geldende voorschriften op voor water, afvoer en elektriciteit.
Wees voorzichtig tijdens de installatie! Draag beschermende handschoenen! Voer de installatie
uit met minimaal twee personen.
Plaats een lekbak op de vloer onder de vaatwasser om schade door waterlekkage te voorkomen.
Voordat u de vaatwasser op zijn plaats schroeft, dient u deze te testen door het Voorspoelen
programma te draaien. Controleer of de vaatwasser zich met water vult en dit weer afvoert.
Controleer ook of er geen aansluitingen lekken.
WAARSCHUWING!
Draai de watertoevoer dicht wanneer u bezig bent met de installatie van de vaatwasser!
Bij werkzaamheden moet de stekker uit het stopcontact worden getrokken of moet de stroom
worden uitgeschakeld!
Instellingen
De afmetingen van de uitsparing en aansluitingen vindt u in de separate installatievoorschriften.
Controleer of alle afmetingen kloppen voordat u met installeren begint. Let op dat de hoogte
van het front aangepast kan worden aan andere uitrusting.
42
Installatie

Table of Contents

Related product manuals