EasyManua.ls Logo

Atlantic alfea extensa duo+ - Page 7

Atlantic alfea extensa duo+
68 pages
Print Icon
To Next Page IconTo Next Page
To Next Page IconTo Next Page
To Previous Page IconTo Previous Page
To Previous Page IconTo Previous Page
Loading...
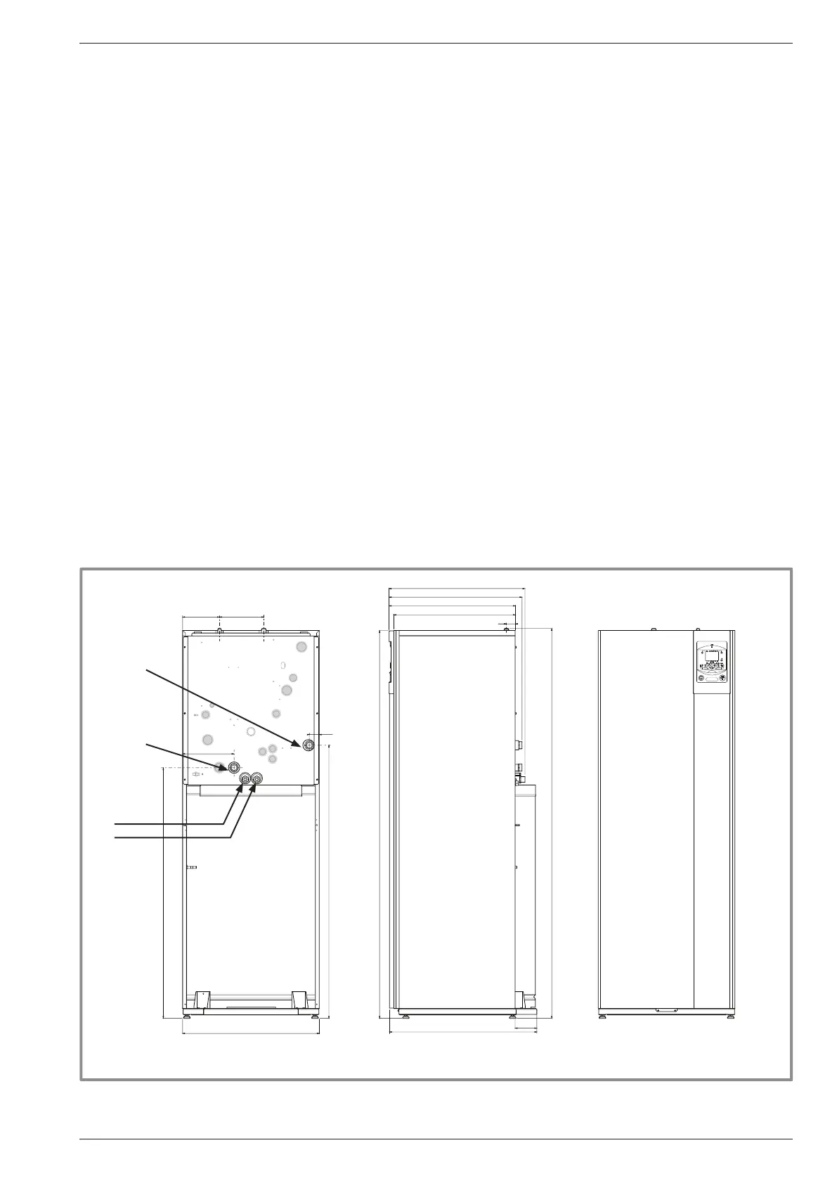
gure 2 - Dimensions in mm
175 210
1840
47
244
1189
648
1296
698
103
1850
43
630
599
576
644
Blockage in the hydraulic unit, see gure 13, page 15.
Back view
Heating ow
DHW
DCW
Heating return
Side view Front view
" Hydraulic module
Installation and operating manual "1578 - EN" - 7 -
Heat Pump alféa extensa duo +

Table of Contents

Related product manuals