EasyManua.ls Logo

Bard MEGA-TEC W150A - Clearance to Combustibles

Default Icon
159 pages
Print Icon
To Next Page IconTo Next Page
To Next Page IconTo Next Page
To Previous Page IconTo Previous Page
To Previous Page IconTo Previous Page
Loading...
Manual 2100-705B
Page 8 of 43
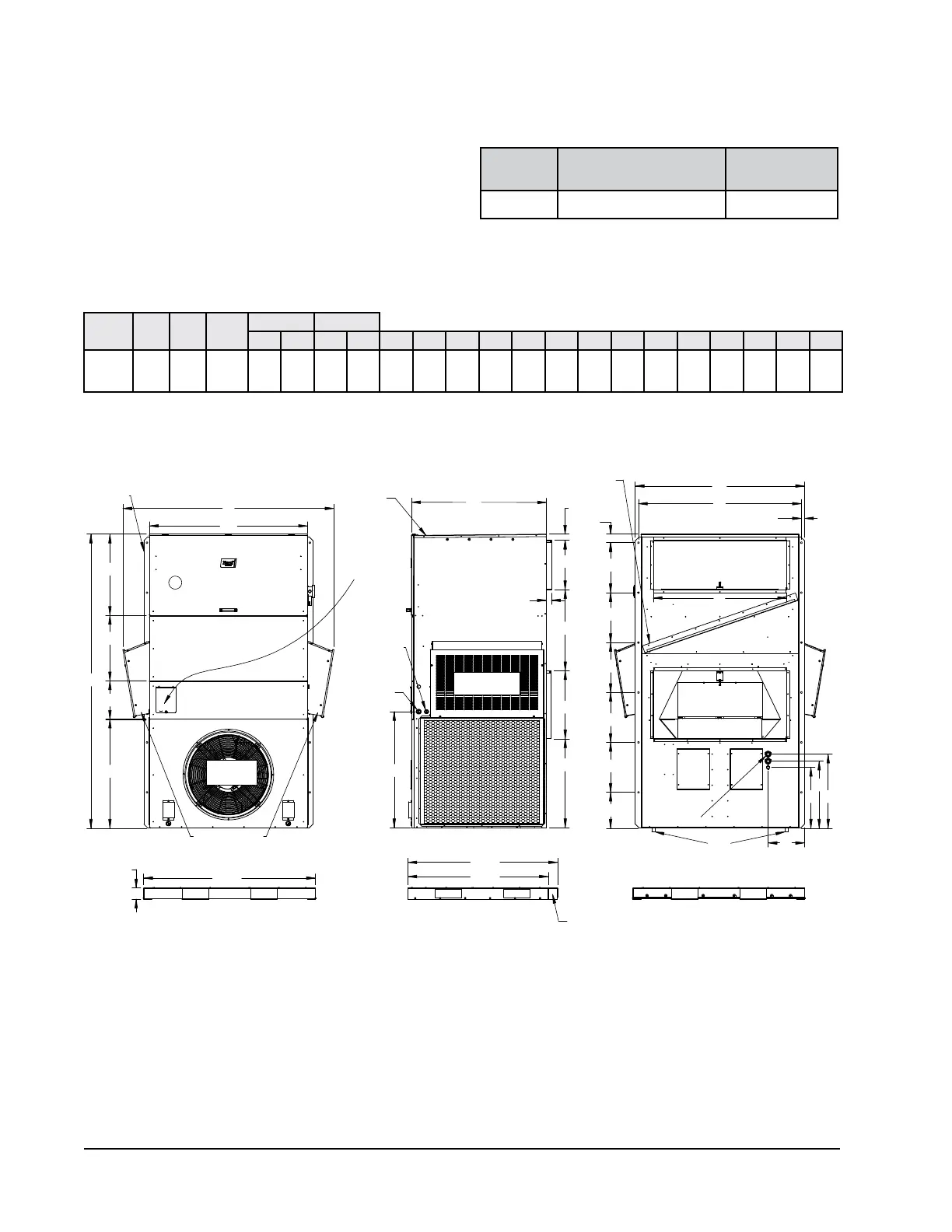
FIGURE 3
Unit Dimensions
Model
Width
(W)
Depth
(D)
Height
(H)
Supply Return
A B C B E F G I K L M N O P R S T U
All
Models
50.64 43.19 94.22 15.81 42.67 21.82 42.74 54.24 12.27 34.95 25.98 28.65 23.73 21.48 11.68 52.24 19.48 2.73 16.00 11.49 67.65
All dimensions are in inches. Dimensional drawings are not to scale.
Clearance to Combustibles
The supply air duct flange and the first 3' of supply
air duct require a minimum of 1/4" clearance to
combustible material. See Figure 5 on page 10 for
details on opening sizes.
TABLE 1
Minimum Clearances Required to
Combustible Materials
Model Supply Air Duct (1st 3') Cabinet
All Models 1/4" 0"
37.18
Optional steel platform adds 3-3/4" hight to vertical
MIS-3945 B
Filter Access Panel
Hood for ECON
Heater Access Panel
Control Access Panel
Blower Access Panel
Condenser
Disconnect
1
Outlet Air
(Lockable)
Access Panel
C. Breaker/
Front View
models only
Side Wall
Mounting
Brackets
(Built In)
G
H
W
F
21.00
26.00
U
Built In
Electrical
Side View
Communication
Entrance
.5° Pitch
Rain Hood
High Voltage
Electrical
Entrance
Ventilation Air
K
1.63
I
D
C
1.97
A
3.75
55.00
Removable bumper for leaving
Steel Platform on unit when
mounting unit to the wall.
48.00
45.00
Back View
Drain
Return Air Opening
Supply Air Opening
Optional
Entrances
Electrical
Top Rain
Flashing
Shipping
Location
T
P
M
L
S
S
S
E
S
B
O
1.00
S
R
N

Table of Contents

Related product manuals