EasyManua.ls Logo

Bard MEGA-TEC W150A - Page 93

Default Icon
159 pages
Print Icon
To Next Page IconTo Next Page
To Next Page IconTo Next Page
To Previous Page IconTo Previous Page
To Previous Page IconTo Previous Page
Loading...
Manual 2100-705B
Page 31 of 43
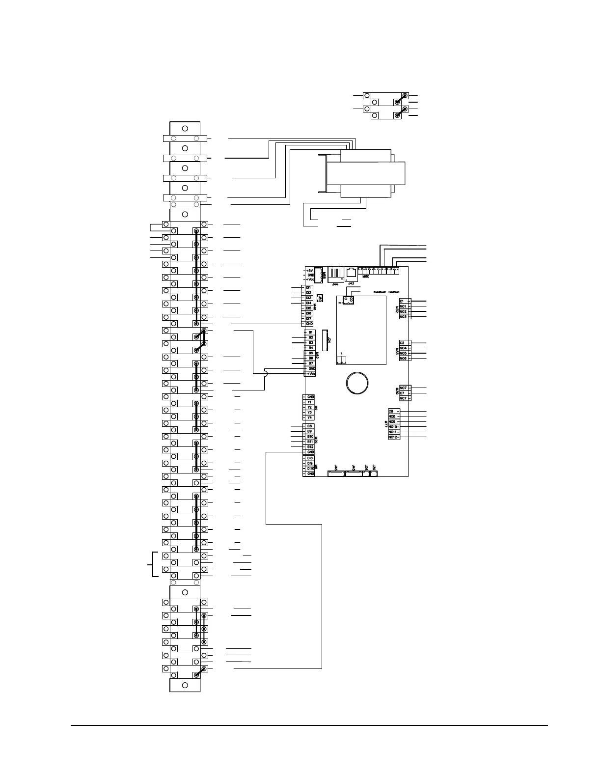
FIGURE 28
LC6000-200 Wiring Diagram
GND
R X+ T X+
R X-T X-
4321
TB 6
120V IN
208V IN
230V IN
COMMON IN
BLACK
RED
ORANGE
WHITE
5
GND
TB 57
TB 56
BLUE
YELLOW
TB 37
TB 32
TB 34
TB 36
TB 45
TB 44
GREEN
G
G0
G
ND
R X+ T
X+
RX-TX-
TB 59
TB 58
6 7 8 9 10 11 12 13 14 15 16 17 18 19 20 21 22 23 24 25 26 27 28 29 30 31 32 33 34 35 36 37 38 39 40 41 42 43 44 45 46 47 48 49 50 51 52 53 54 55 56 57 58 59
TB 8
TB 10
DI1RED
DI2RED
DI3
RED
B2RED
B3RED
B4RED
B6RED
B7RED
GND
GREEN
GND
BLK/RED
TB 12
TB 14
TB 16
TB 18
TB 20
+Vdc
TB 26
TB 30
B9
RED
B10
RED
C1BLACK
C2BLACK
NO1BLUE/BLK
NO2BLUE/BLK
NO3BLUE/BLK
NO4BLUE/BLK
NO5BLUE/BLK
NO6BLUE/BLK
TB 43
TB 38
TB 40
TB 42
TB 55
TB 46
TB 48
TB 50
TB 52
TB 54
NO7BLUE/BLK
NO8BLUE/BLK
NO9BLUE/BLK
NO10BLUE/BLK
NO11BLUE/BLK
NO12BLUE/BLK
1-RX+TX+
C7BLACK
C8BLACK
2-RX+TX+
1-RX-TX-
2-RX-TX-
GREEN
TB 28
B8RED
SMK
JUMPER
HYD
JUMPER
GEN
JUMPER
ORANGE
BROWN
ORANGE/BLK
BROWN/BLK
62 61 64 63
66 65
68 67
70 69
72 71
G 24 VAC TB74YELLOW
G0 24 VAC TB76BLUE
B11
B12
TB 67
TB 70
DI4
TB 69
RED
RED
RED
GREEN
GND
YELLOW
BLUE
EMPTY
60
GROUND
TB76
TB74
74 73 76 75
TB 61
TB 64
G
G0
NOTE:
Wire indexes are identified such that
even numbered index numbers are on
the lower wire entries of the terminal
block and odd numbered index
numbers are on the top wire entries.
Since terminal block 60 is a ground
block, terminal blocks 61 thru 72
shift while still maintaining the same
top and bottom configuration.
(L1) 120V IN
(L1) 208V IN
(L1) 230V IN
(L2 OR N) COMMON IN
POWER GND
LC6000
TERMINAL BLOCK
TRANSFORMER
120V/208V/230VAC
24VAC
24VAC
INPUT
TO
BOARD
PLC BOARD
UNIT
MODBUS
CONNECTORS

Table of Contents

Related product manuals