EasyManua.ls Logo

BendPak HD-973PX - Page 90

BendPak HD-973PX
112 pages
Print Icon
To Next Page IconTo Next Page
To Next Page IconTo Next Page
To Previous Page IconTo Previous Page
To Previous Page IconTo Previous Page
Loading...
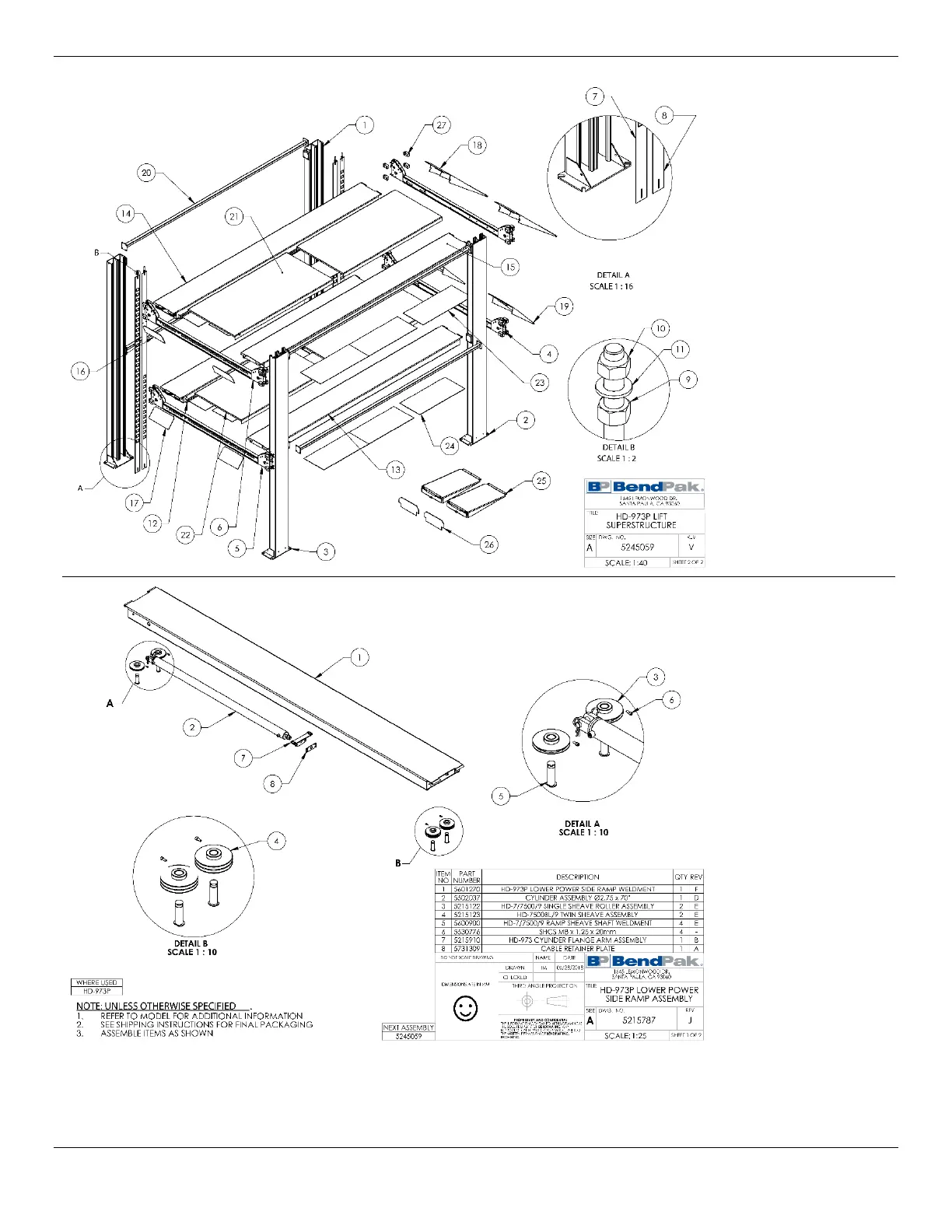
HD-973P Series Multi-Level Parking Lift 90 P/N 5900076Rev. B3 — January 2024

Related product manuals