EasyManua.ls Logo

BendPak HD-9ST - Specifications

BendPak HD-9ST
92 pages
Print Icon
To Next Page IconTo Next Page
To Next Page IconTo Next Page
To Previous Page IconTo Previous Page
To Previous Page IconTo Previous Page
Loading...
HD-9 Series Four-Post Lifts 8 P/N 5900123Rev. M February 2020
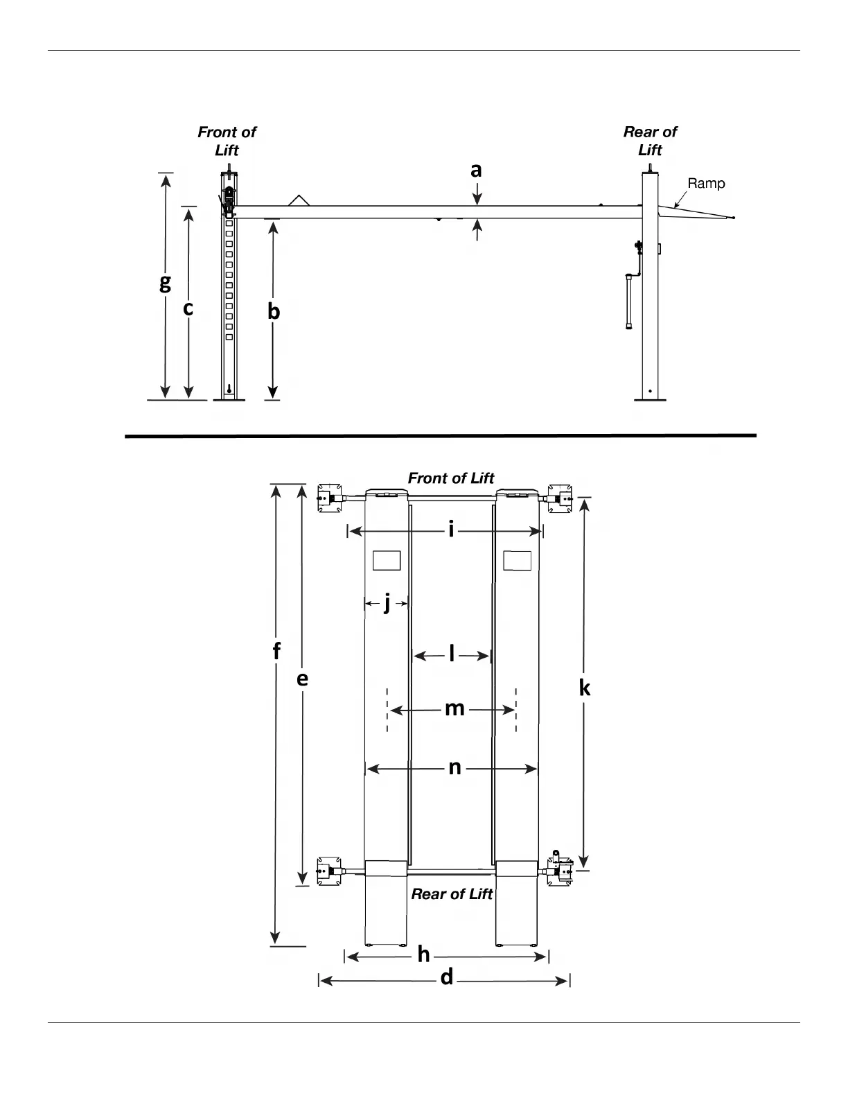
Specifications

Other manuals for BendPak HD-9ST

Related product manuals