EasyManua.ls Logo

BendPak HD-9XW - Page 63

BendPak HD-9XW
92 pages
Print Icon
To Next Page IconTo Next Page
To Next Page IconTo Next Page
To Previous Page IconTo Previous Page
To Previous Page IconTo Previous Page
Loading...
HD-9 Series Four-Post Lifts 63 P/N 5900123Rev. M February 2020
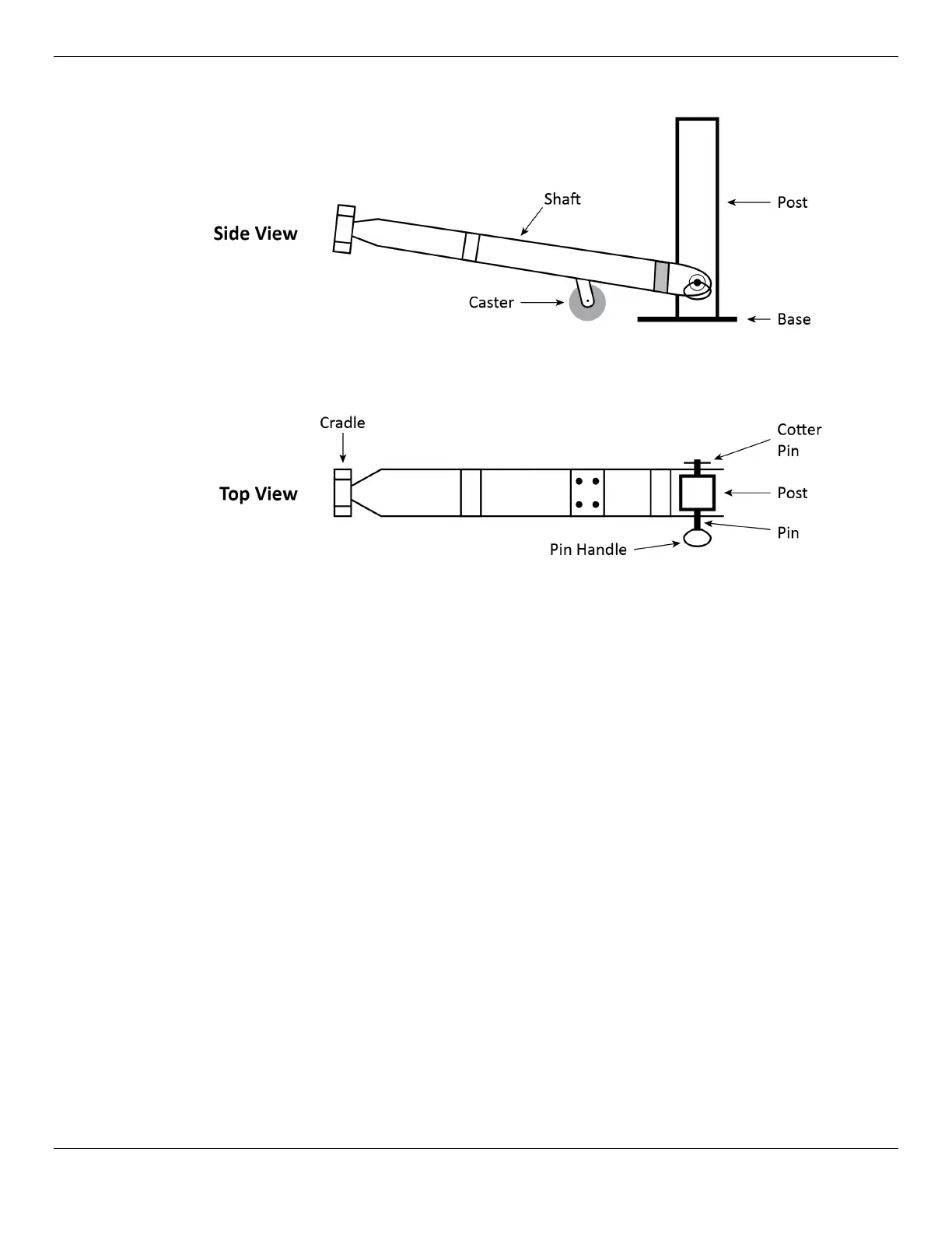
The following drawings shows the components of the Caster Kit.
To use the Caster Kit:
1. Raise the Lift to the first Safety Lock and engage it here.
2. Locate the components of the four Caster Kit assemblies.
3. Using the supplied hardware, bolt the four Casters to the four holes in the four Caster Kit Shafts.
4. Take one Shaft and put the open end around the Post, with the Shaft on the inside of the Lift.
The Cradle of the Shaft needs to be directly below the Crosstube.
5. Put the Pin through the holes in the Caster Kit assembly and the Post.
6. Put the Cotter Pin into place on the end of the Pin.
7. Repeat Steps 4 through 6 for the other three Caster Kit assemblies.
8. Lower the Lift to the ground.
Make sure the Crosstubes are going into all four Cradles on all four Caster Kit Shafts; this what
pushes the Bases of the Posts off the ground so that you can move it.
9. Move the Lift to the desired location.
10. Raise the Lift to a locking position and engage it there.
WARNING Make sure the Runways are secured on a Safety Lock position before removing the
Caster Kit assemblies.
11. Take off all four Caster Kit assemblies.

Other manuals for BendPak HD-9XW

Related product manuals