EasyManua.ls Logo

BendPak XPR-9TS - Step 4; Site Layout

Default Icon
56 pages
Print Icon
To Next Page IconTo Next Page
To Next Page IconTo Next Page
To Previous Page IconTo Previous Page
To Previous Page IconTo Previous Page
Loading...
13
STEP 4
(Site Layout)
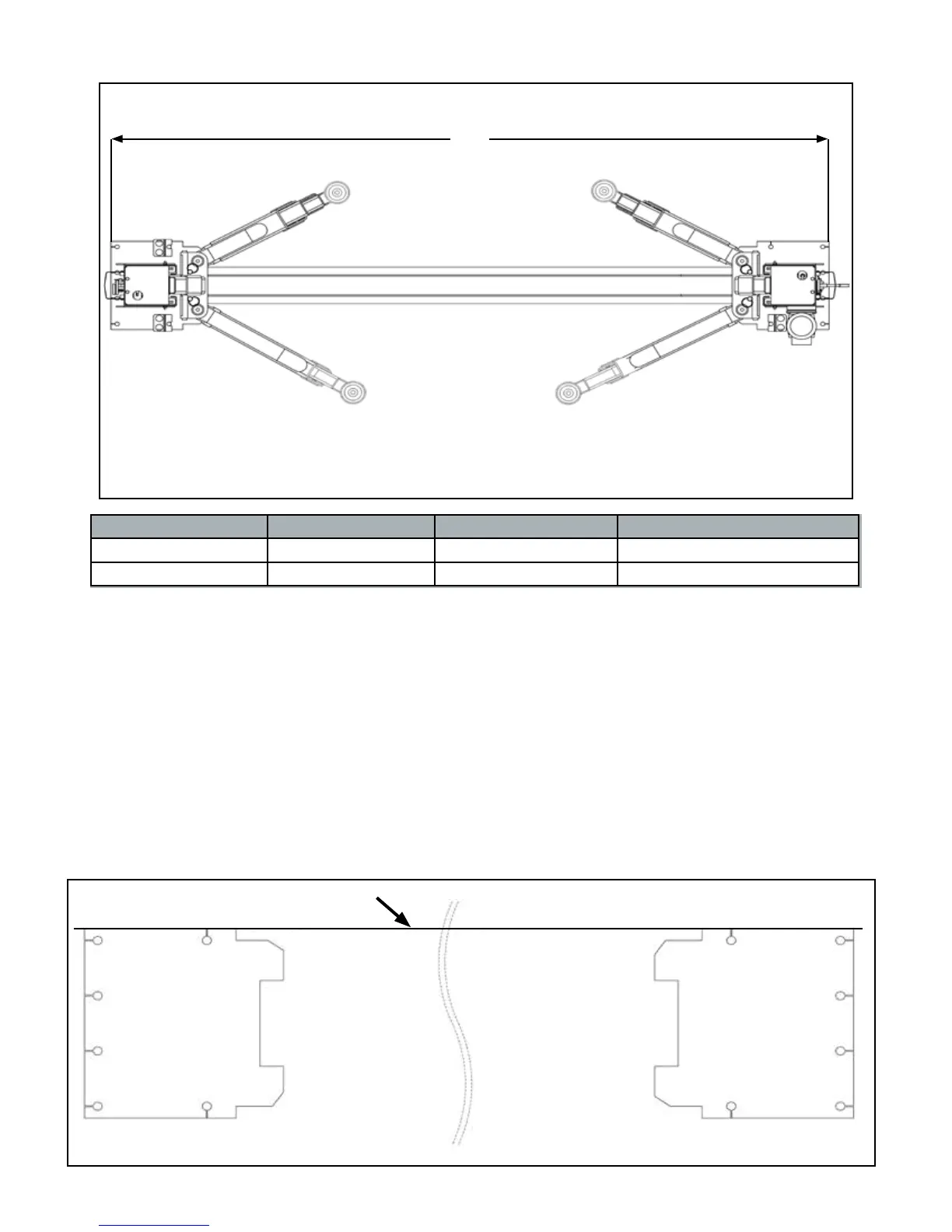
1. Determine which side of the lift will be the approach side.
2. Now determine where the power unit will be located.
The POWER SIDE column has the power unit mounting
bracket attached to the side.
3. Use the chart on this page to determine which lift width
layout you would like to use.
4. Once a location is determined, use a carpenters chalk
line to layout a grid for the post locations. Keep all dimensions
square within 1/8” (3mm) or malfunctioning of the lift can occur.
5. After the post locations are properly marked, use chalk
or crayon to make an outline of the posts on the oor at each
post location using the post base plates as a template.
(See Fig 4.1)
6. CHECK ALL DIMENSIONS TWICE and make sure that
the layout is perfectly square.
CHALK LINE
FOR XPR-9S CONFIGURATIONS USE BASE PLATE EDGES TO ALIGN POSTS
Fig 4.1
SITE LAYOUT / FLOOR PLAN
A
Model Configuration A Capacity
XPR-9S Narrow 3353 mm / 132” 9,000 LBS/4082 KG
XPR-9S Wide 3683 mm / 145” 9,000 LBS/4082 KG

Related product manuals