EasyManua.ls Logo

Bennett 3712 - Big Fueler - Satellite Models; P1385 S1 View 1 - Self Contained Big Fueler Master 1 Product 1 Hose and 2 Product 2 Hose

Default Icon
90 pages
Print Icon
To Next Page IconTo Next Page
To Next Page IconTo Next Page
To Previous Page IconTo Previous Page
To Previous Page IconTo Previous Page
Loading...
65
120001 Rev K 1-19-18
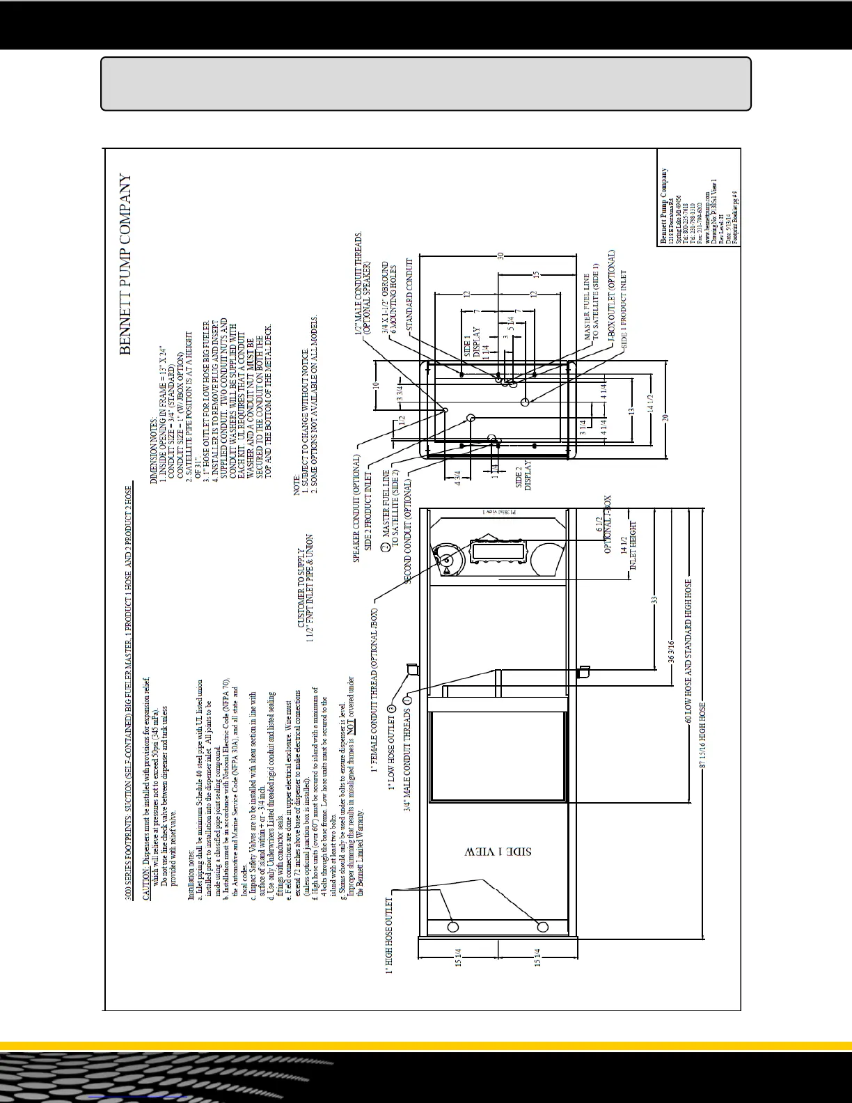
3000 Series Footprint Drawings
Big Fueler - Self Contained Master 1 Product 1 Hose and 2 Product 2 Hose
Note: Drawing schematic P1385s1 View 1 (Part Number 110226) can be found on the USB provided.

Table of Contents

Other manuals for Bennett 3712

Related product manuals