EasyManua.ls Logo

Bennett 3722 - P1387 S2 View 3 - 2 Product 4 Hose

Default Icon
90 pages
Print Icon
To Next Page IconTo Next Page
To Next Page IconTo Next Page
To Previous Page IconTo Previous Page
To Previous Page IconTo Previous Page
Loading...
63
120001 Rev K 1-19-18
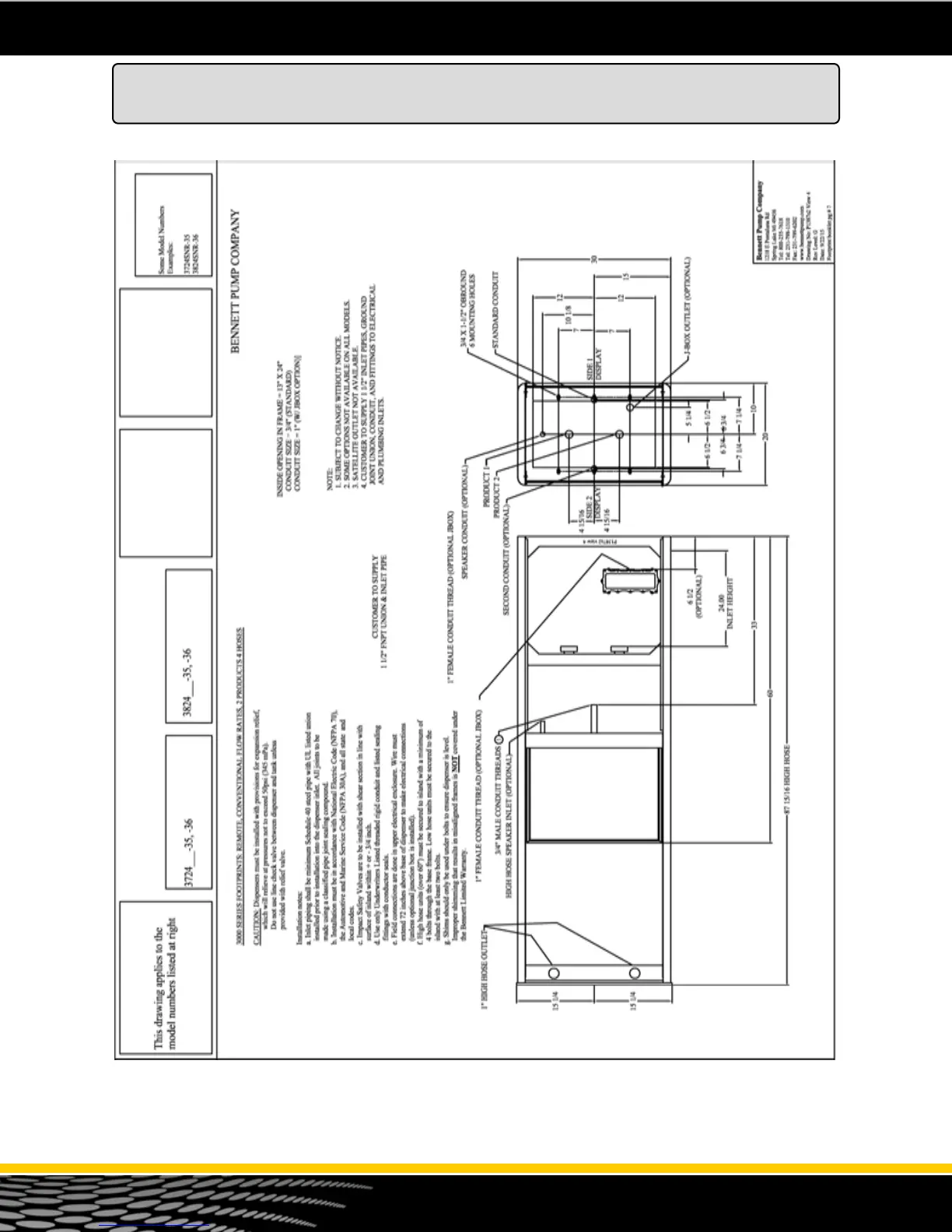
3000 Series Footprint Drawings
Remote 2 Product 4 Hose Models
Note: Drawing schematic P1387s2 View 4 (Part Number110223) can be found on the USB provided.

Table of Contents

Other manuals for Bennett 3722

Related product manuals