EasyManua.ls Logo

Bennett 3722 - P1385 S2 View 4 - Remote 2 Product 2 Hose or Satellite 1 Product 1 Hose

Default Icon
90 pages
Print Icon
To Next Page IconTo Next Page
To Next Page IconTo Next Page
To Previous Page IconTo Previous Page
To Previous Page IconTo Previous Page
Loading...
66
120001 Rev K 1-19-18
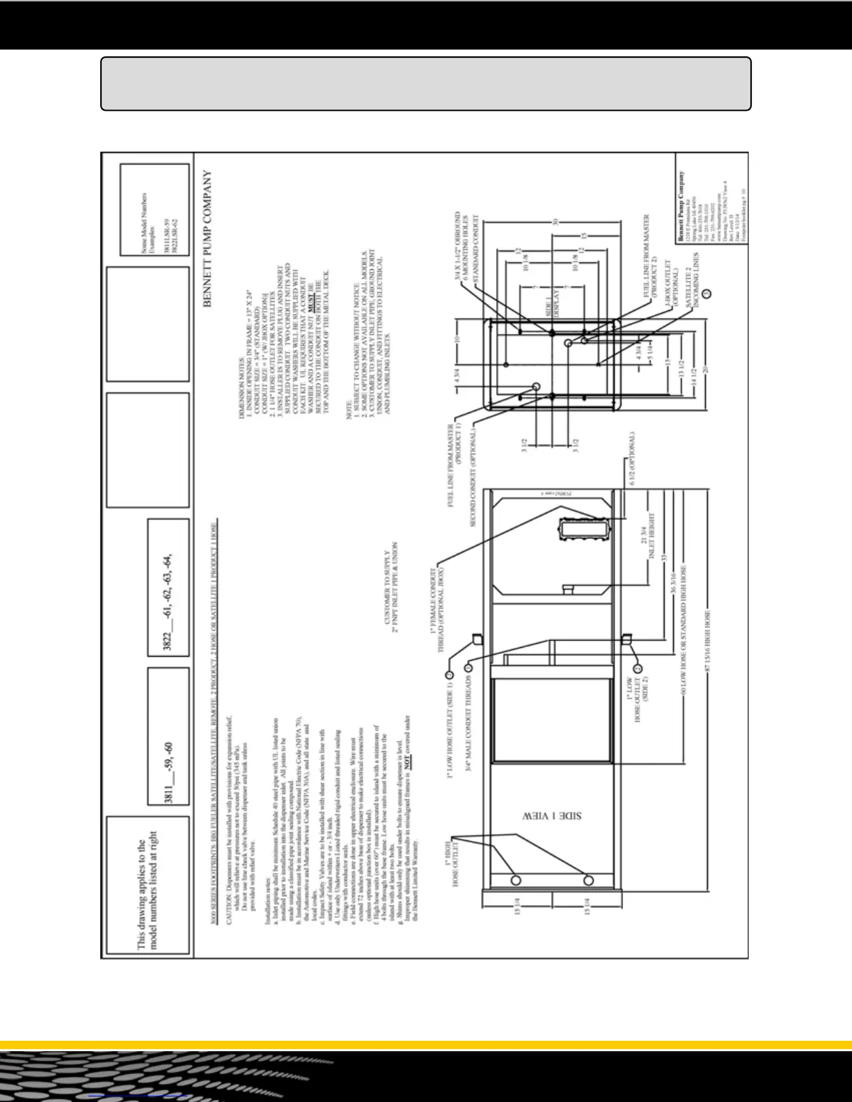
3000 Series Footprint Drawings
Big Fueler Satellite - Remote 2 Product 2 Hose or Satellite 1 Product 1 Hose
Note: Drawing schematic P1385s2 View 4 (Part Number 110226) can be found on the USB provided.

Table of Contents

Other manuals for Bennett 3722

Related product manuals