EasyManua.ls Logo

Bentel Security B3G-220 - Page 13

Bentel Security B3G-220
64 pages
Print Icon
To Next Page IconTo Next Page
To Next Page IconTo Next Page
To Previous Page IconTo Previous Page
To Previous Page IconTo Previous Page
Loading...
220 Series 13
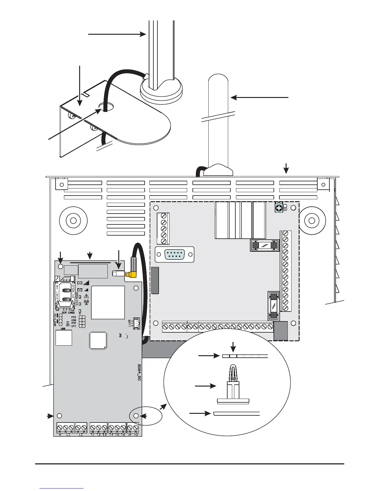
Figure 3 – Installing the kit communicator: A) metal housing; B) communicator board; C) panel motherboard; D) adhesive plastic
mount; E) base of metal housing.
51
96
C
26
27
29
29
43B30
30
30
30
E
D
B
30
A

Related product manuals