EasyManua.ls Logo

Bigab 7-10 - Page 39

Bigab 7-10
46 pages
Print Icon
To Next Page IconTo Next Page
To Next Page IconTo Next Page
To Previous Page IconTo Previous Page
To Previous Page IconTo Previous Page
Loading...
      G  G
www.forsmw.com
39
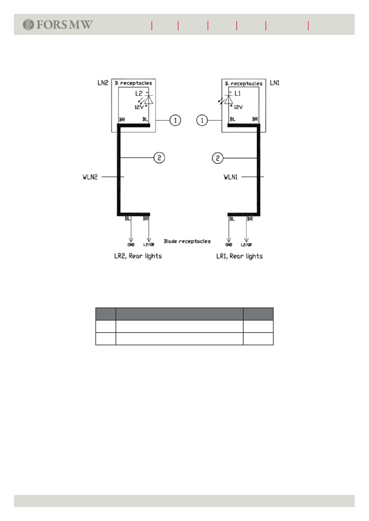
License plate lights
Electrical schemelicense for the plate lights
Table 9. Electrical scheme license for the plate lights
Pos
Description Qty.
1
Rear license plate light 2
2
PVC cable 3 m

Related product manuals