EasyManua.ls Logo

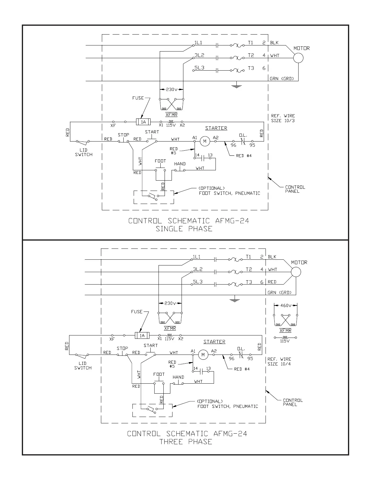
BIRO AFMG-24 - Control Schematic AFMG-24 Single Phase; Control Schematic AFMG-24 Three Phase

BIRO AFMG-24
32 pages
Print Icon
To Next Page IconTo Next Page
To Next Page IconTo Next Page
To Previous Page IconTo Previous Page
To Previous Page IconTo Previous Page
Loading...
10