EasyManua.ls Logo

Bosch BEA 150 - 12.7 Circuit diagram (Andros analysis chamber)

Bosch BEA 150
103 pages
Print Icon
To Next Page IconTo Next Page
To Next Page IconTo Next Page
To Previous Page IconTo Previous Page
To Previous Page IconTo Previous Page
Loading...
98
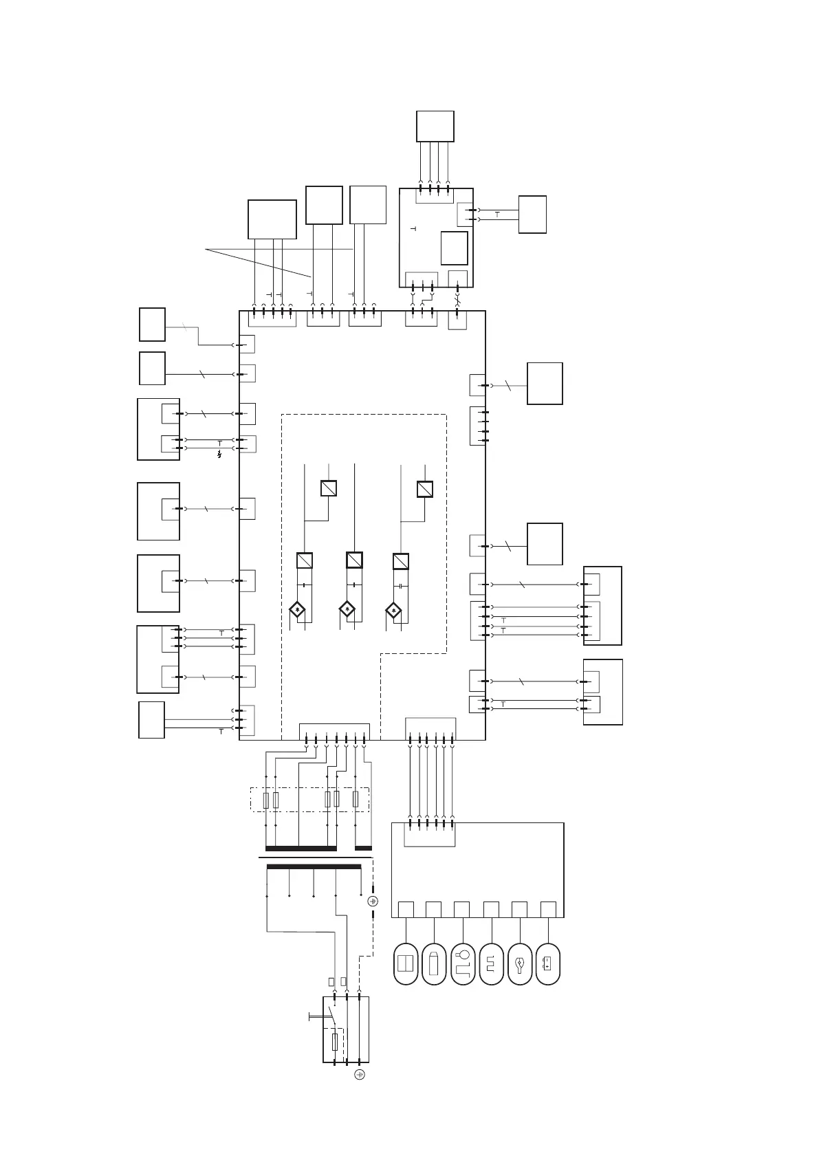
12.7 Circuit diagram (Andros analysis chamber)
gnge
U
N
110V ; 125V Fi1 = 2,5 A
230V ; 245V Fi 1 = 1,25 A
50/60 Hz
Trafo
4
Fi 1
Netzschalter
3
2
1
0V
+15V
-15V
110V
230V
5
2
1
2
3
4
5
6
7
X18
Drehzahl/
Temperatur
IR-
Empf.
X12
Interner Drucker
Folientastatur
TFT-Display
Steuerrechner
123
X14
1
2
3
X19
X13
1
2
1
2
X4
X17
X4
X5
X6
X8
5
X3
X8
X2
X1
X22
1
2
34
1
2
3
1
2
3
Pumpe
Ventil
X24
X26
1
2
1
2
Disketten-
laufwerk
1
2
3
4
AMM
Festplatte
1
2
3 4
Druck-
schalter
1
2
O2-
Sensor
1
2
3
Externer
Drucker
X7
X34
X25
X20
X21 X9
X16
X23
T
U2
U3
U4
GND
U2L
VCC
U2
U3
U4
GND
U2L
VCC
11, 13
1, 9, 10, 12, 14
16
6
8
2, 4
+ 5V
34
+ 5V
+ 12V
40
25
14,5 VAC
11 VAC
0V
11 VAC
14,5 VAC
22VAC
0V
RTM
X3
15
10
1
2
3
9V - 16V
7 - 11mV
+ 12V
+ 12V
NO2-
Sensor
+ 12V
22
1
2
3
4
5
1KV
8
9V - 16V
+ 12V
16
1
2
3
+ 5V
PC-
Tastatur
X15
RS 232
X11
6
9
DC
DC
DC
DC
DC
DC
DC
DC
DC
DC
+ 12V
+ 8V
+ 5V
- 5V
- 12V
1
2
NO-
Sensor
Stromlauf_BEA_Andros
3
4
+5V
URef
GND
USignal
T2,5A
T6,3 A
T6,3 A
T6,3 A
T6,3 A
X6
EOBD-LP
10
! Anschlussleitung fuer
X24 und X26 nicht
vertauschen.

Table of Contents

Related product manuals