EasyManua.ls Logo

Brother KE-436C - Installation Guide; Power Table Installation

Brother KE-436C
73 pages
Print Icon
To Next Page IconTo Next Page
To Next Page IconTo Next Page
To Previous Page IconTo Previous Page
To Previous Page IconTo Previous Page
Loading...
3. INSTALLATION
3
KE-436C
3. INSTALLATION
CAUTION
Machine installation should only be carried out by a
qualified technician.
Contact your Brother dealer or a qualified electrician
for any electrical work that may need to be done.
The sewing machine head weighs more than 56 kg.
The installation should be carried out by two or more
people.
Do not connect the power cord until installation is
complete, otherwise the machine may operate if the
foot switch is depressed by mistake, which could
result in injury.
Hold the machine head with both hands when tilting it
back or returning it to its original position.
Furthermore, after tilting back the machine head, do
not push the face plate side or the pulley side from
above, as this could cause the machine head to
topple over, which may result in personal injury or
damage to the machine.
All cords
should be secured at least 25 mm away
from any moving parts. Furthermore, do not
excessively bend the cable or secure it too firmly
staples, otherwise there is the danger that fire or
electric shocks could occur.
Be sure to connect the ground. If the ground
connection is not secure, you run the risk of receiving
a serious electric shock, and problems with correct
operation may also occur.
Install the belt covers to the machine head and motor.
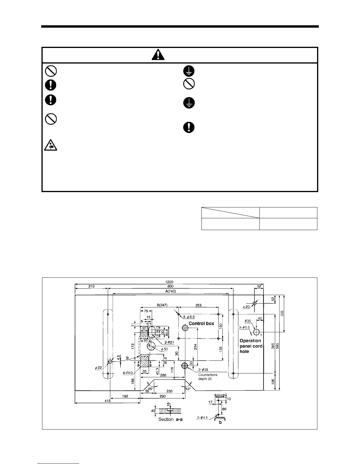
3-1. Power table
Model code
Use the power table which has been specially designed for each
sewing machines.
* If using a commercially-available table, process it as shown in
the illustration below.
Table/ legs assembly 127-P34-50001
Note:
The thickness of the table should be at least 40 mm, and it should be strong enough to bear the weight and vibration of the
sewing machine.
If the distance A between the insides of the legs is less than 740 mm, move the control box installation position to the left
(B = 247 mm).
Check that the control box is at least 10 mm away from the leg. If the control box and leg are touching, it could cause the
sewing machine to operate incorrectly.
1090Q

Table of Contents

Other manuals for Brother KE-436C

Related product manuals