EasyManua.ls Logo

Brunner KSO 33 - Page 47

Default Icon
49 pages
Print Icon
To Next Page IconTo Next Page
To Next Page IconTo Next Page
To Previous Page IconTo Previous Page
To Previous Page IconTo Previous Page
Loading...
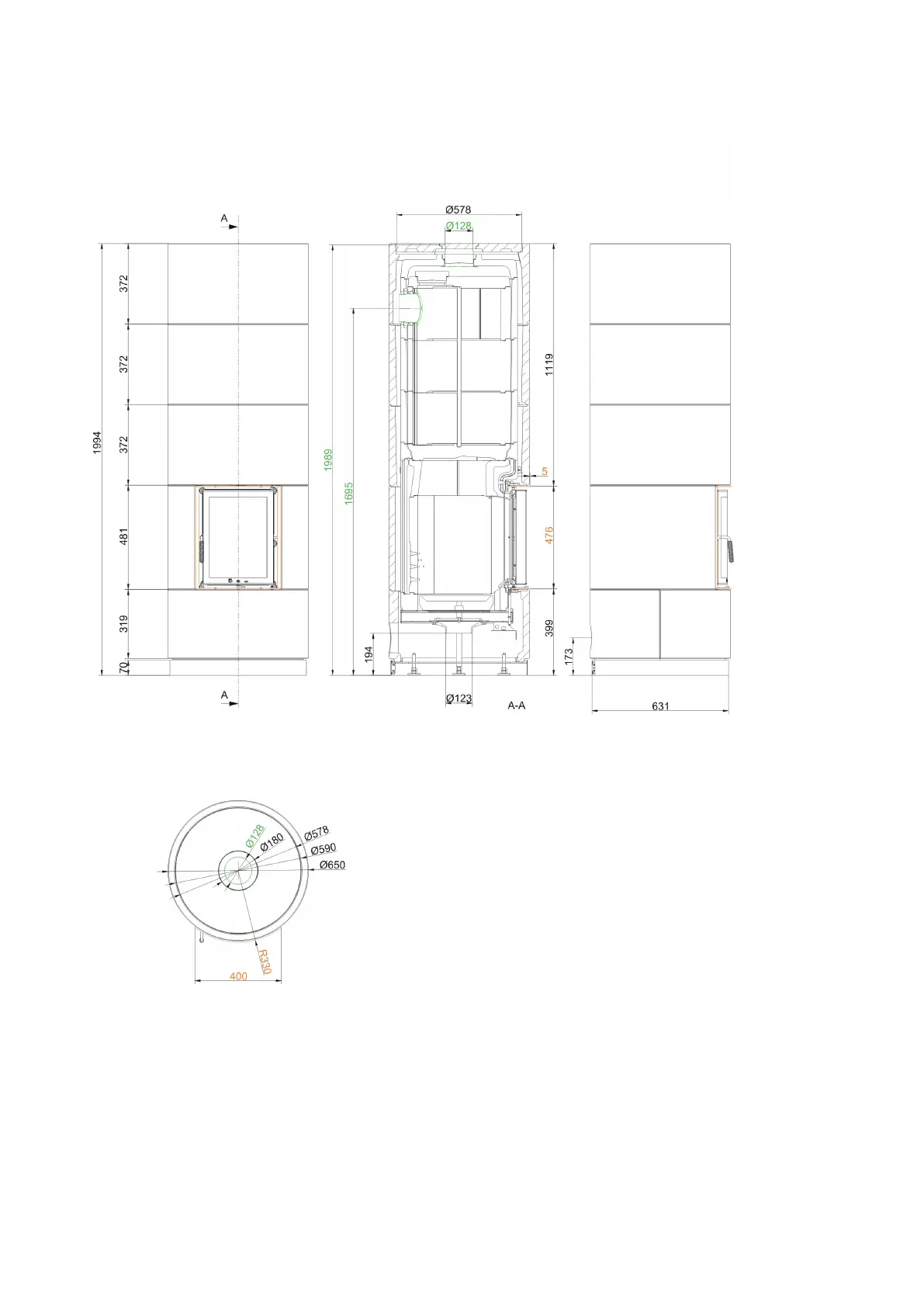
Dimension sheets - KSO 33 r
… thermal concrete with mounting frame
We suggest for CAD planning Palette CAD. Permanent updated drawings: www.brunner.de
Frames/ flue gas outlet connection/ combustion air supply connection/ front variants/ support bearing are marked in col-
or.
Stand: 2021-12-02

Related product manuals