EasyManua.ls Logo

BYD EPS14P - Introduction; General View; Technical Specifications Overview

BYD EPS14P
38 pages
Print Icon
To Next Page IconTo Next Page
To Next Page IconTo Next Page
To Previous Page IconTo Previous Page
To Previous Page IconTo Previous Page
Loading...
INTRODUCTION
OPERATOR MANUAL
14
EPS14P
15
OM-EPS14P2019001-EN
VIEW, TECH N I CAL SPE C I FICAT ION S AND O P E RAT I NG
ENVIRONMENT
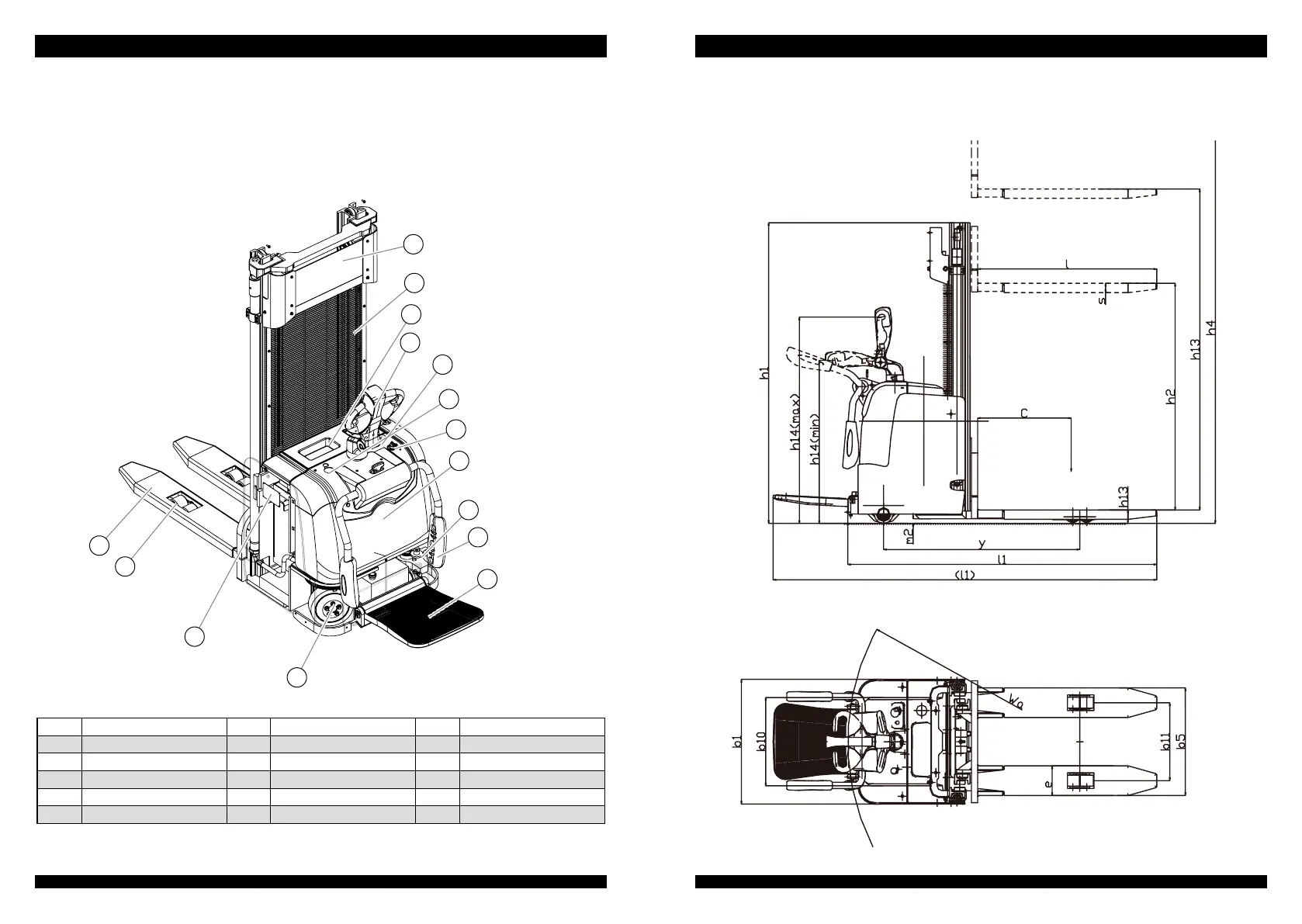
General View
3
1
12
14
13
6
8
5
10
15
2
11
9
7
4
No. Name No. Name No. Name
1 Fork Load Wheel 6 Battery Cover 11 Cover
2 Forklift nameplate 7 Tiller 12 Castor Wheel
3 Fork 8 Emergency Disconnect Switch 13 Drive Wheel
4 Mast 9 Display 14 Fork Carriage
5 Protection Mesh 10 Key Switch 15 Pedal
Technical Specifications
Vehicle Drawing

Table of Contents

Related product manuals