EasyManua.ls Logo

Cadel nice - CHIMNEY POT AND EXTERNAL AIR INLET; Chimney Pot Design and Purpose

Cadel nice
Print Icon
To Next Page IconTo Next Page
To Next Page IconTo Next Page
To Previous Page IconTo Previous Page
To Previous Page IconTo Previous Page
Loading...
Pag. 8 MIRIAM-NICE-DIANA-PRETTY-MARY
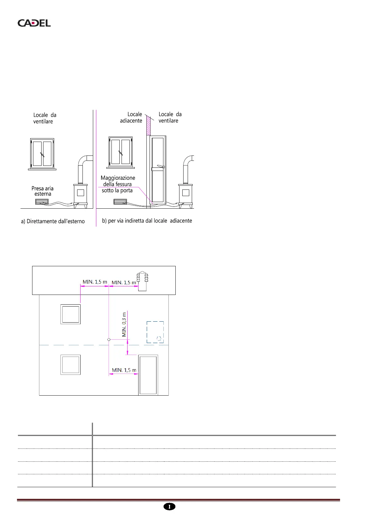
2.9. PRESA D’ARIA ESTERNA
È obbligatorio disporre di un riciclo d’aria esterno per un buon benessere ambientale. L’afflusso dell’aria
tra l’esterno ed il locale può avvenire per via diretta, tramite apertura su parete esterna del locale
(soluzione preferibile vedi Figura 7 a); oppure per via indiretta, mediante prelievo dell’aria da locali
attigui a quello da ventilare (vedi Figura 7 b). Sono da escludere locali adibiti a camere da letto, rimesse
garage, magazzini di materiali combustibili. La presa d'aria deve avere una superficie netta totale minimo
di 80cm
2
: la suddetta superficie va aumentata se all’interno del locale vi sono altri generatori attivi
Figura 7
(per esempio: elettroventilatore per
l’estrazione dell’aria viziata, cappa da
cucina, altre stufe, ecc...), che mettono in
depressione l’ambiente. È necessario far
verificare che, con tutte le apparecchiature
accese, la caduta di pressione tra la stanza
e l’esterno non superi il valore di 4,0Pa. Se
necessario aumentare la presa d’aria la
quale deve essere realizzata ad una quota
prossima al pavimento con griglia di
protezione esterna antivolatili e in modo
tale da non essere ostruita da nessun
oggetto.
2.10. PRESA D’ARIA COMBURENTE
Figura 8
Si consiglia di prelevare l’aria necessaria alla
combustione direttamente dall’esterno (in
alcuni paesi e/o località è obbligatorio), con
tubo minimo Ø60mm, massima lunghezza 2
metri; per l’attacco vedere retro stufa (vedi
Figura 2 a pag.2). Ciò permette una miglior
combustione e un’assenza di rischi per la
salute. In fase d’installazione è necessario
verificare le distanze minime necessarie alla
presa d’aria comburente prelevata
direttamente dall’esterno poiché (per
esempio) una finestra o porta aperta
provocano un vortice che può sottrarre l’aria
comburente necessaria alla stufa (vedi
schema sotto). Sulla parte esterna è
necessario mettere una griglia antivolatili.
DISTANZA (metri)
La presa d’aria deve essere distante da:
1,5 m
SOTTO
Porte, finestre, scarichi fumi, intercapedini, …
1,5 m
ORIZZONTALMENTE
Porte, finestre, scarichi fumi, intercapedini, …
0,3 m
SOPRA
Porte, finestre, scarichi fumi, intercapedini, …
1,5 m
LONTANO
Da uscita fumi

Table of Contents

Other manuals for Cadel nice

Related product manuals