EasyManua.ls Logo

Calorex Pro-Pac 45 - Page 150

Calorex Pro-Pac 45
156 pages
Print Icon
To Next Page IconTo Next Page
To Next Page IconTo Next Page
To Previous Page IconTo Previous Page
To Previous Page IconTo Previous Page
Loading...
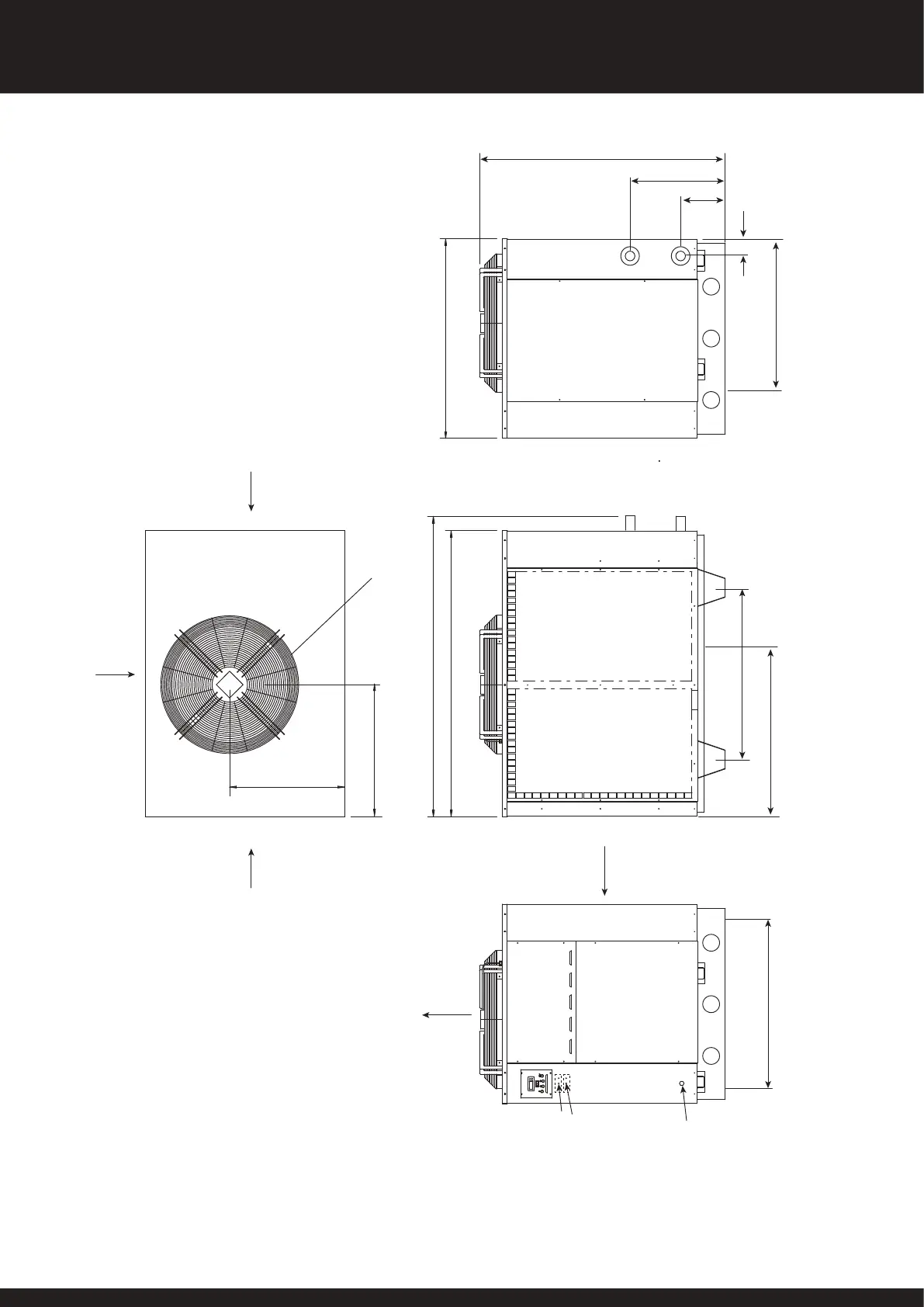
PROPAC PP45M/MY
DIMENSIONES EN mm
CUESTION 1
PERMITIR 500mm PARA ACCEDER A LOS PANELES DE SERVICIO
CONEXIONES DE AGUA 1½" BSPM
CONDENSADO 1½" BSPM
1590
1665
ENTRADA
DE AGUA
SALIDA
DE AGUA
1054
CONDENSADO FUERA
POSICION EN LA BASE
ENTRADA
DE AIRE
SALIDA DE AIRE
CONSOLA
INTERRUPTOR AP
INTERRUPTOR BP
(SE REINICIA
AUTOMATICAMENTE
EN UNIDADES Y)
PANEL
DE SERVICIO
CAJA
ELECTRICA
PANEL
DE
SERVICIO
ENTRADA
DE RED
0 1
VENTILADOR NOMINAL
DIAMETRO 730
735
610
PANEL DE SERVICIO
PANEL DE
SERVICIO
PANEL DE
SERVICIO
FIJAR LOS CENTROS PARA ASEGURAR LA MAQUINA
*970
*985
235.5
502.5
65
1060
1310
PANEL
DE
SERVICIO
850
CONDENSADO FUERA
POSICION EN LA BASE
46
SD566252 ISSUE 51
PR0-PAC SYSTEM MANUAL DE INSTALACIÓN

Table of Contents

Other manuals for Calorex Pro-Pac 45

Related product manuals