EasyManua.ls Logo

Calorex Pro-Pac 45 - Page 38

Calorex Pro-Pac 45
156 pages
Print Icon
To Next Page IconTo Next Page
To Next Page IconTo Next Page
To Previous Page IconTo Previous Page
To Previous Page IconTo Previous Page
Loading...
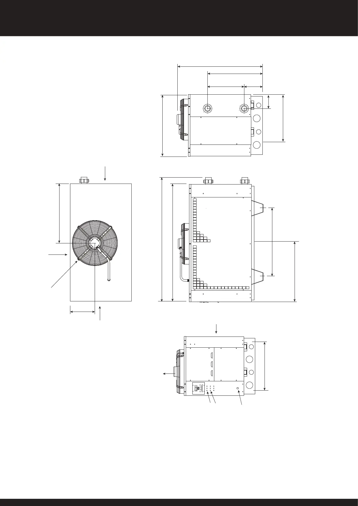
Pro-Pac PPT30M/MY
DIMENSIONS IN mm
ISSUE 1
ALLOW 500mm FOR ACCESS TO SERVICE PANELS
WATER CONNECTIONS 2" UNION SOCKETS
CONDENSATE 1.5"
CONSOLE
HP SWITCH
LP SWITCH
(AUTO RESET
LP SWITCH ON
Y MACHINES)
AIR IN
MAINS IN
AIR OUT
SERVICE
PANEL
SERVICE
PANEL
ELECTRIC
BOX
ACCESS
IO
*683
*FIXING CENTRES TO SECURE MACHINE
780
SERVICE
PANEL
1080
232
692
460
176
WATER
OUT
WATER
IN
1585
1486
*880
814
POSITION OF CONDENSATE
DRAIN IN BASE OF MACHINE
617
POSITION OF CONDENSATE
DRAIN IN BASE OF MACHINE
SERVICE
PANEL
NOMINAL FAN
DIAMETER 500
SERVICE
PANEL
SERVICE
PANEL
752
316
38
SD566252 ISSUE 51
PR0-PAC SYSTEM OWNER INSTALLATION MANUAL

Table of Contents

Other manuals for Calorex Pro-Pac 45

Related product manuals