EasyManua.ls Logo

Calorex Pro-Pac 45 - Page 43

Calorex Pro-Pac 45
156 pages
Print Icon
To Next Page IconTo Next Page
To Next Page IconTo Next Page
To Previous Page IconTo Previous Page
To Previous Page IconTo Previous Page
Loading...
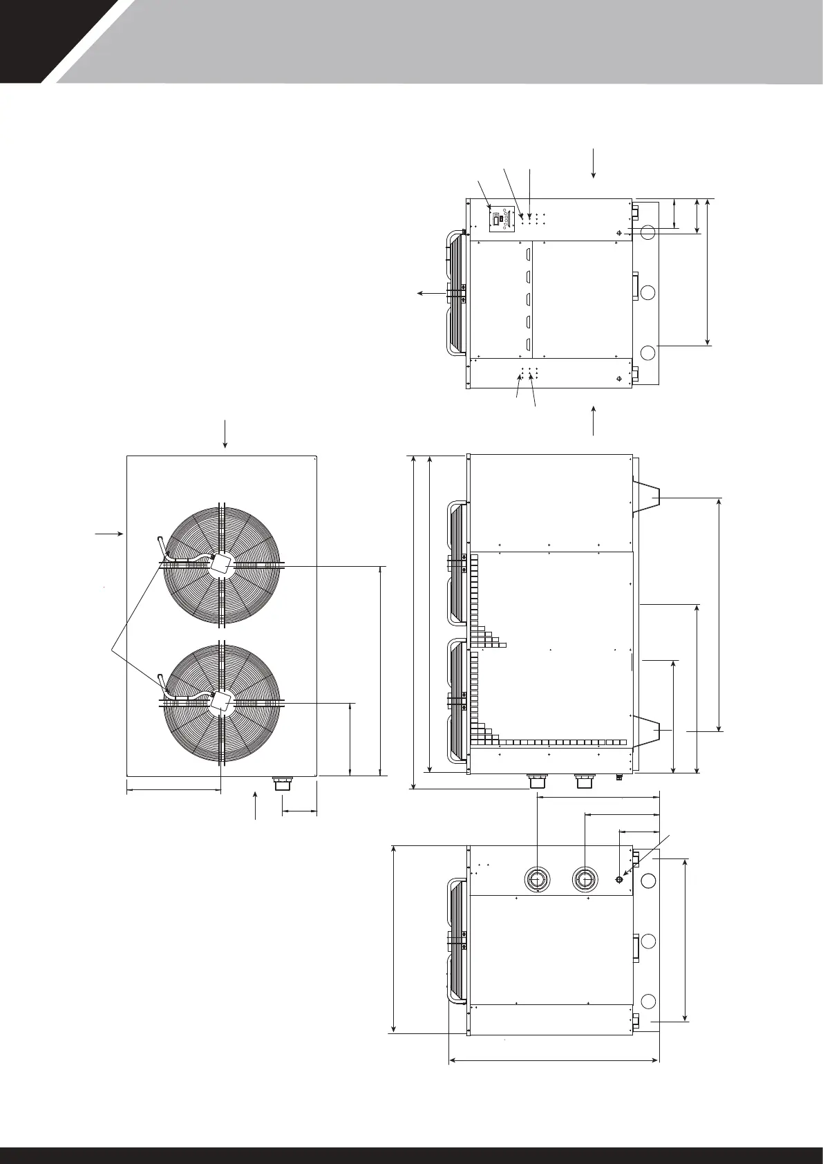
Pro-Pac PPT90
DIMENSIONS IN mm
ISSUE 2
ALLOW 500mm CLEARANCE FOR
SERVICE PANELS
WATER CONNECTIONS 3" BSPM
CONDENSATE 1½" BSPM
NOMINAL FAN DIAMETER 710
596
458
1321
SERVICE
PANEL
SERVICE
PANEL
SERVICE
PANEL
215
2095
2006
751
CONDENSATE POSITION IN
BASE
1099
CONDENSATE POSITION IN
BASE
*1470
FAN 2
FAN 1
HP
SWITCH
AIR OUT
AIR IN
CONSOLE
HP
SWITCH
LP
SWITCH
LP
SWITCH
AIR IN
987
CONDENSATE POSITION (BASE)
215
CONDENSATE
POSITION
(BASE)
187
1
1350
1190
*1105
*FIXING CENTRES FOR SECURING MACHINE
WATER
OUT
WATER
IN
465
252
762
CONDENSER
DRAIN
POSITION
SERVICE PANEL FOR
ELECTRIC BOX ACCESS
SERVICE PANEL
43
SD566252 ISSUE 51

Table of Contents

Other manuals for Calorex Pro-Pac 45

Related product manuals