EasyManua.ls Logo

Calorex Pro-Pac 45 - Page 92

Calorex Pro-Pac 45
156 pages
Print Icon
To Next Page IconTo Next Page
To Next Page IconTo Next Page
To Previous Page IconTo Previous Page
To Previous Page IconTo Previous Page
Loading...
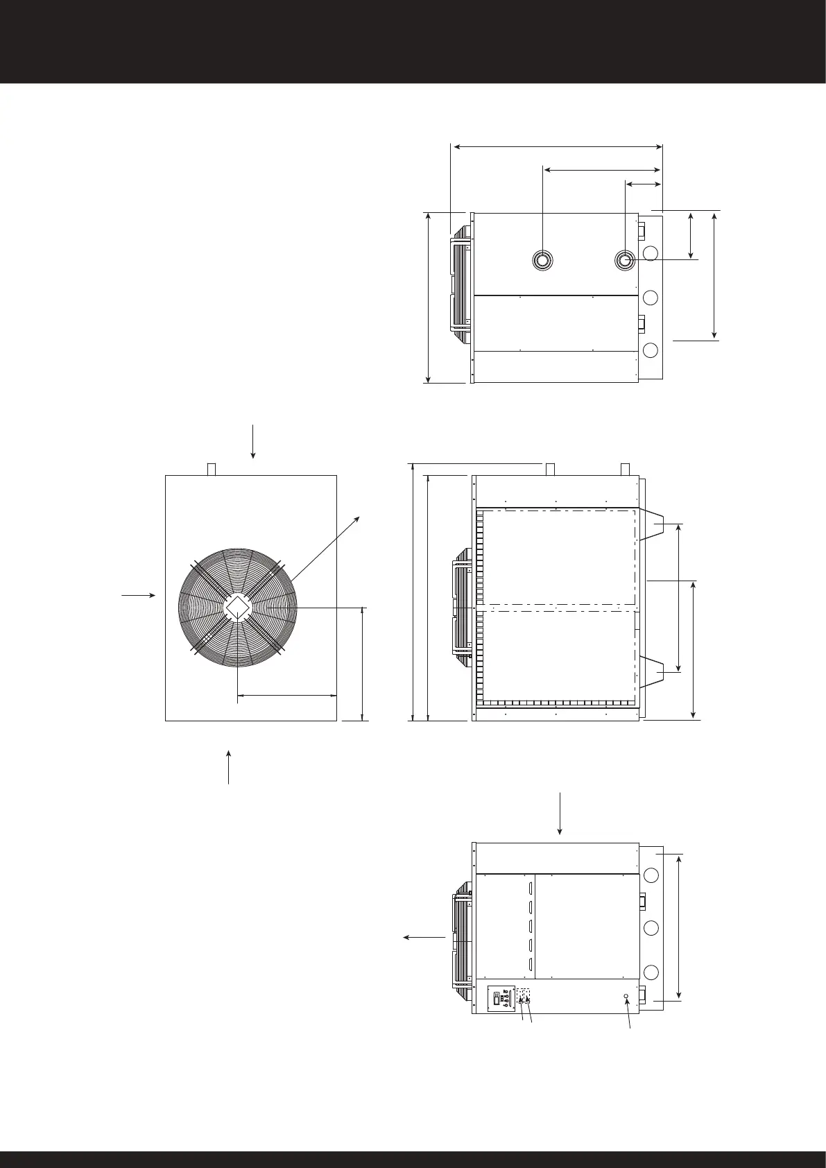
PROPAC PPT45M/MY
DIMENSIONS EN mm
LAISSER 500mm D'ESPACE
POUR ACCEDER AUX
PANNEAUX DE SERVICE
CONNEXIONS D'EAU 2" UNION
CONDENSAT 1.5"
50
29
*POSITION DE
LA VIDANGE
CONDENSEUR
1590
1665
ENTREE
D'EAU
SORTIE
D'EAU
ENTREE
D'AIR
SORTIE D'AIR
CONSOLE
BOUTON DE
REARMEMENT HP
PANNEAU
ELECTRIQUE DE
SERVICE
PANNEAU
DE
SERVICE
ALIMENTATION
PANNEAU DE
SERVICE
DIAMETRE DU
VENTILATEUR 730
735
610
PANNEAU DE
SERVICE
PANNEAU
DE SERVICE
BOUTON DE
REARMEMENT BP
(AUTO RESET
SUR
MODELES "Y")
CONDENSAT SORTANT
DE LA BASE
1054
0 1
*970
*POINTS DE RACCORDEMENT
POUR FIXER LA MACHINE AU SOL
*985
PANNEAU
DE
SERVICE
850
CONDENSAT SORTANT
DE LA BASE
232
742
1310
1060
297
40
SD566252 ISSUE 51
SYSTEME PRO-PAC MANUEL D’INSTALLATION

Table of Contents

Other manuals for Calorex Pro-Pac 45

Related product manuals