EasyManua.ls Logo

Calpeda e-idos E-MXPM - Installation Examples

Calpeda e-idos E-MXPM
Print Icon
To Next Page IconTo Next Page
To Next Page IconTo Next Page
To Previous Page IconTo Previous Page
To Previous Page IconTo Previous Page
Loading...
E-MXAM E-MXPM E-NGXM Rev6 89 / 96
4.93.288/4
4.93.288/3
4.93.288/2
4.93.288/6
≥ 0,5 m
(E-NGX,E-MXA)
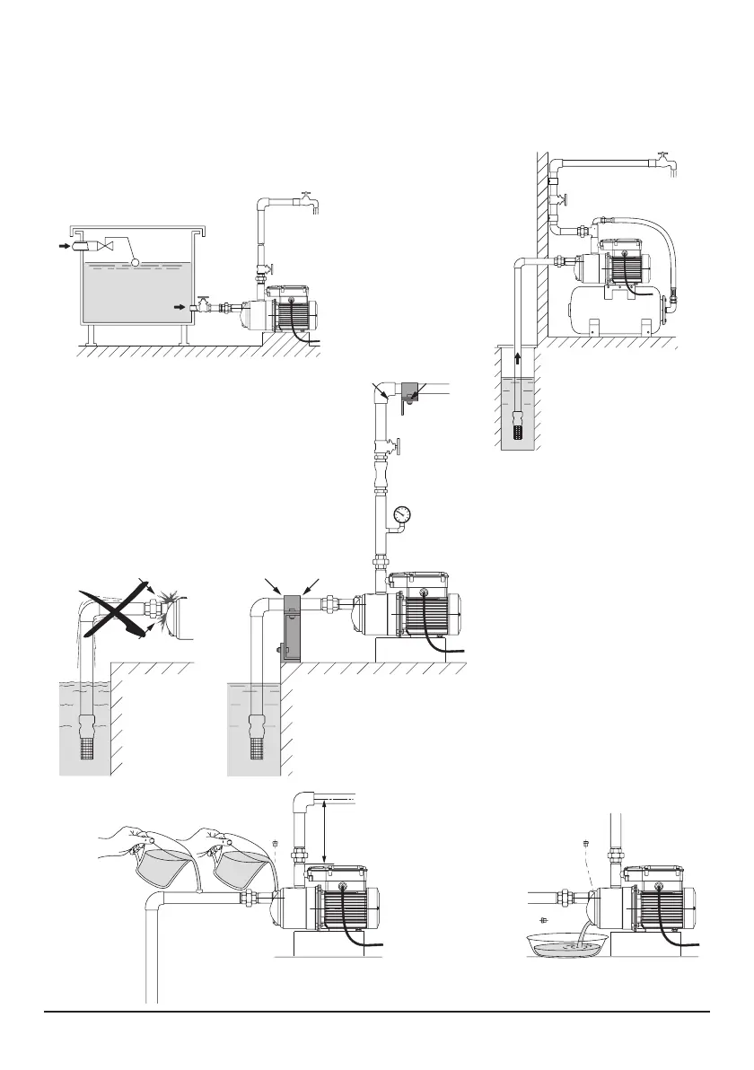
14. Esempi di installazione
Installation examples
Einbaubeispiele
Exemples d’installation
Ejemplos de instalaciones
Installationsexempel
Installatievoorbeelden
Παραδείγματα εγκαταστάσεων
èËÏÂ˚ ÛÒÚ‡ÌÓ‚ÍË
安装示意图


Fig. 1
Funzionamento sotto battente
Positive suction head operation
Zulaufbetrieb
Fonctionnement en charge
Funcionamiento bajo carga
Tillrinning sugsidan
Toeloopsituatie
Θέση λειτουργίας με θετική αναρρόφηση
ꇷÓÚ‡ ÔÓ‰ „ˉ‡‚΢ÂÒÍËÏ Ì‡ÔÓÓÏ
正吸上水头的操作

Fig. 4
Riempimento
Filling
Auffüllung
Remplissage
Llenado
Fyllning
Vullen
Γέμισμα
ç‡ÔÓÎÌÂÌËÂ
灌泵


Fig. 5
Scarico
Draining
Entleerung
Vidange
Vaciado
Avtappning
Aftappen
Αποστράγγιση
ëÎË‚
排空


Fig. 2
Funzionamento in aspirazione
Suction lift operation
Saugbetrieb
Fonctionnement en aspiration
Funcionamiento en aspiración
Sugande funktion
Zuigsituatie
Θέση λειτουργίας με κάθετη αναρρόφηση
ꇷÓÚ‡ ‚˚¯Â ÛÓ‚Ìfl ÊˉÍÓÒÚË
负吸水头工作

Fig. 3
Sostegni ed ancoraggi delle tubazioni
Supports and clamps for pipelines
Stützen und Verankerungen der Rohrleitungen
Soutien et ancrage des tuyaux
Sostén y anclaje de la instalación
Konsoll samt klämmor för rör
Steunen voor leidingen
Υποστήριξη και σφίξιμο σωληνώσεων
OÔÓ˚ Ë ÍÂÔÎÂÌËfl ÚÛ·
管路的支撑及夹具


E-MXAM E-MXPM E-NGXM Rev6.indd 89E-MXAM E-MXPM E-NGXM Rev6.indd 89 02/02/22 14:3502/02/22 14:35

Table of Contents

Related product manuals