EasyManua.ls Logo

Cameron NUFLO Scanner 2000 microEFM - Page 31

Cameron NUFLO Scanner 2000 microEFM
192 pages
Print Icon
To Next Page IconTo Next Page
To Next Page IconTo Next Page
To Previous Page IconTo Previous Page
To Previous Page IconTo Previous Page
Loading...

Scanner
®
2000 microEFM Section 2
MVT
adapter
MVT
4.96
(126.0)
5.71
(145.0)
5.32
(135.1)
0.32
(8.1)
5.00
(127)
9.60
(243.8)
1/4-18 NPT
process
connections
2.125
(53.98)
5.32
(135.1)
4.94
(125.5)
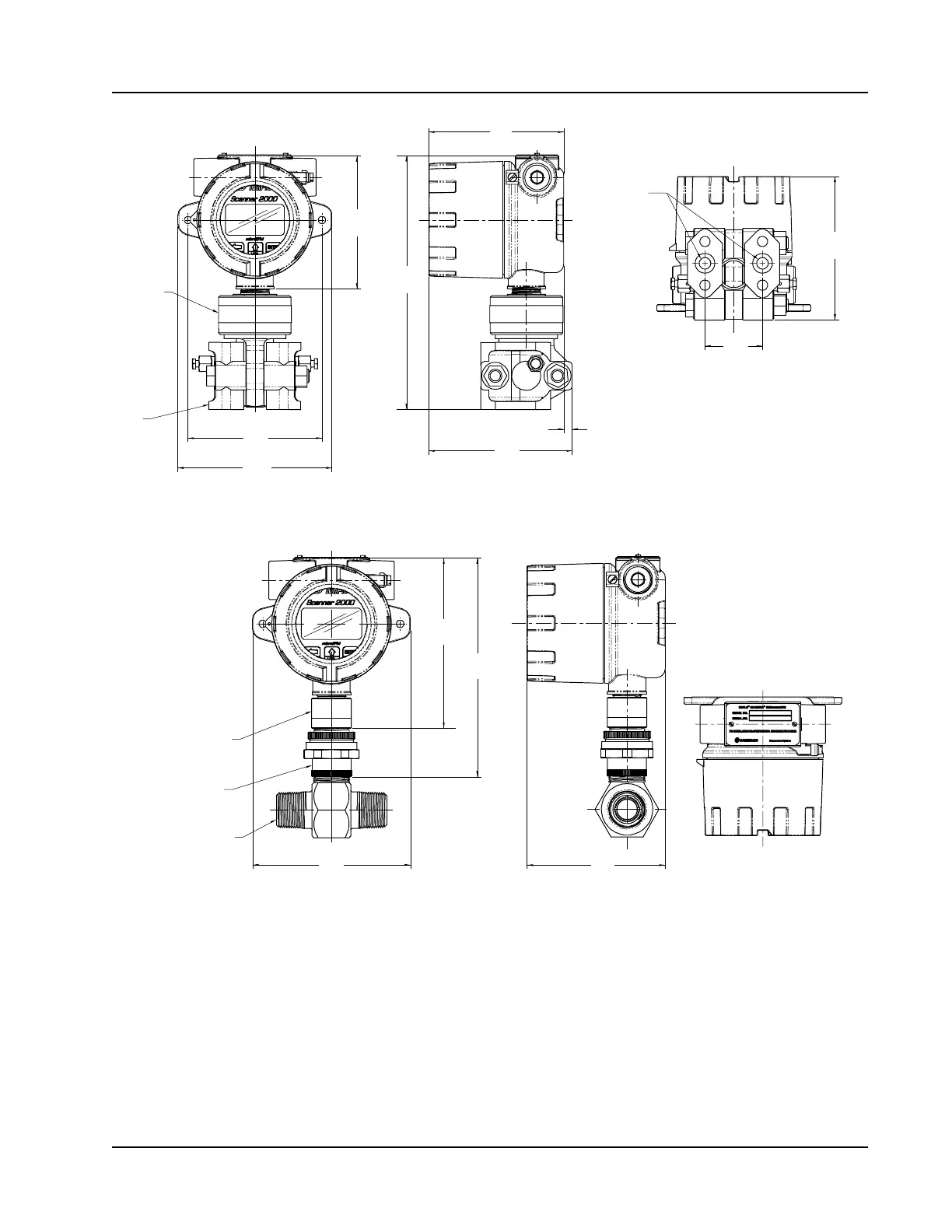
Figure 2.1—Scanner 2000 with direct-mount MVT (MVT with bottom ports shown)
3/4” NPT to
1” NPT M/F adapter
Union
Turbine flowmeter
5.71
(145.0)
approx. 6.17
(156.7)
approx. 7.92
(201.2)
5.00
(127)
)LJXUH²6FDQQHUGLUHFWPRXQWHGWRD1X)ORWXUELQHÀRZPHWHU&6$DSSURYHGZKHQGLUHFWPRXQWHG
WRD1X)ORWXUELQHÀRZPHWHURUD%DUWRQ6HULHVÀRZPHWHU

Table of Contents

Related product manuals