EasyManua.ls Logo

Cameron NUFLO Scanner 2000 microEFM - Page 32

Cameron NUFLO Scanner 2000 microEFM
192 pages
Print Icon
To Next Page IconTo Next Page
To Next Page IconTo Next Page
To Previous Page IconTo Previous Page
To Previous Page IconTo Previous Page
Loading...

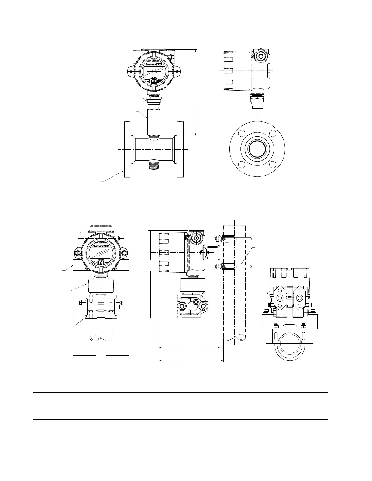
Section 2 Scanner
®
2000 microEFM
7000 Series
turbine meter
M20 to 3/4”-14 NPT reducer
3/4”-14 NPT to M20 stand-off tube
approx. 9.00
(228.6)
)LJXUH²6FDQQHUGLUHFWPRXQWHGWRD%DUWRQ6HULHVÀRZPHWHU$7(;DSSURYHGRQO\ZKHQ
GLUHFWPRXQWHGWRD%DUWRQ6HULHVÀRZPHWHU
Pole
mount kit
MVT
MVT adapter
Pole
mount kit
6.00
(152.4)
6.95
(176.5)
6.56
(166.6)
9.60
(243.8)
Figure 2.4—Scanner 2000 with MVT, remote-mounted on a 2-in. pole using a NuFlo hardware kit (Part No.
9A-30028004)
,PSRUWDQW 7KHYHUWLFDOSLSHPRXQWFRQ¿JXUDWLRQVKRZQLQ)LJXUHLVQRWUHFRPPHQGHGIRUVLGH
SRUW097VZKHQPDWHGZLWKDEORFNPDQLIROGIRUOLTXLGRUVWHDPPHDVXUHPHQW$KRUL-
zontal pipe mount should be considered for these installations.

Table of Contents

Related product manuals