EasyManua.ls Logo

Carrier 40MULA - Page 8

Carrier 40MULA
18 pages
Print Icon
To Next Page IconTo Next Page
To Next Page IconTo Next Page
To Previous Page IconTo Previous Page
To Previous Page IconTo Previous Page
Loading...
40MULA: Installation Instructions
Manufacturer reserves the right to change, at any time, specifications and designs without notice and without obligations.
8
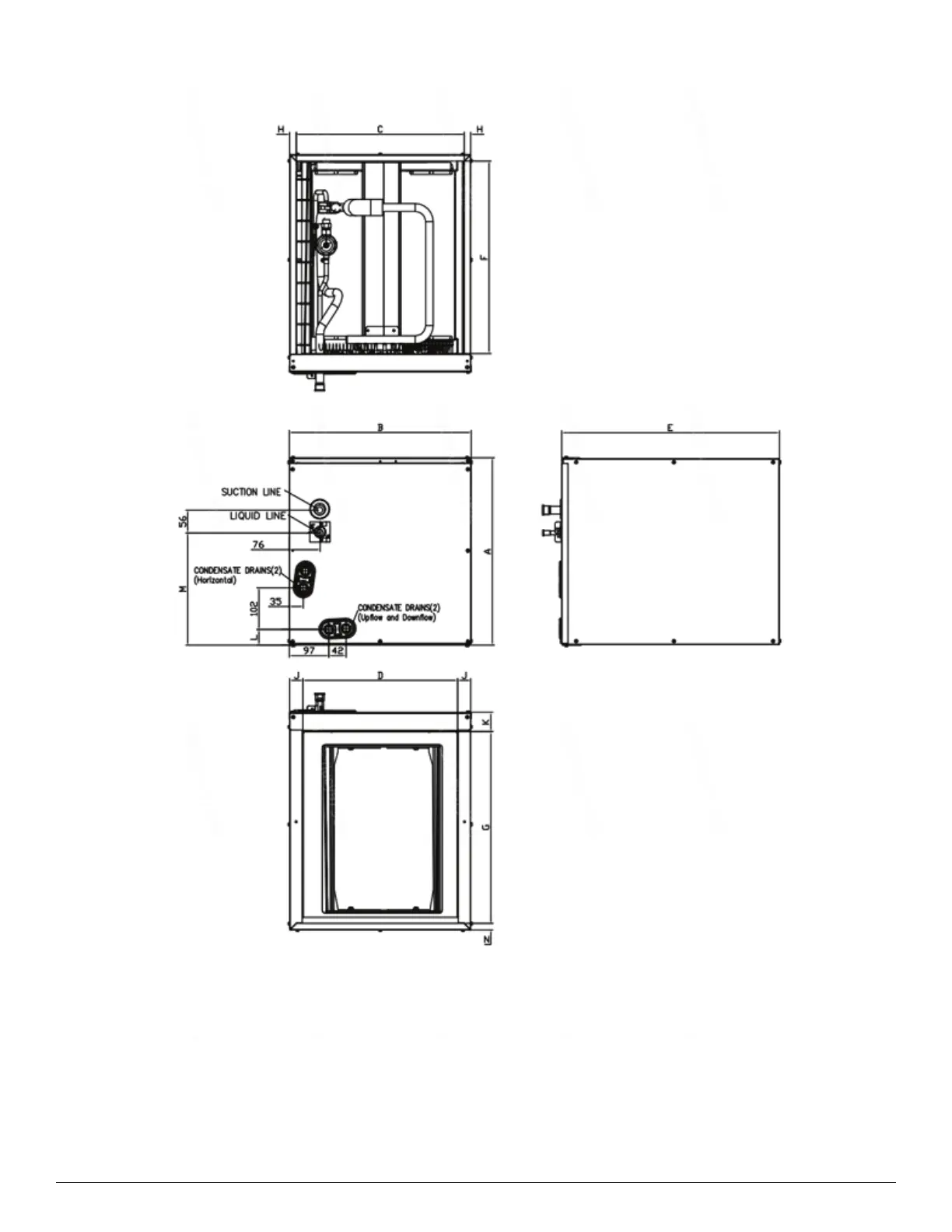
Fig. 7 — 40MULAQ24XBX, 40MULAQ36XCX, 40MULAQ48XCX, 40MULAQ60XDX

Related product manuals