EasyManua.ls Logo

Carrier 48XP024 - Page 3

Carrier 48XP024
30 pages
Print Icon
To Next Page IconTo Next Page
To Next Page IconTo Next Page
To Previous Page IconTo Previous Page
To Previous Page IconTo Previous Page
Loading...
3
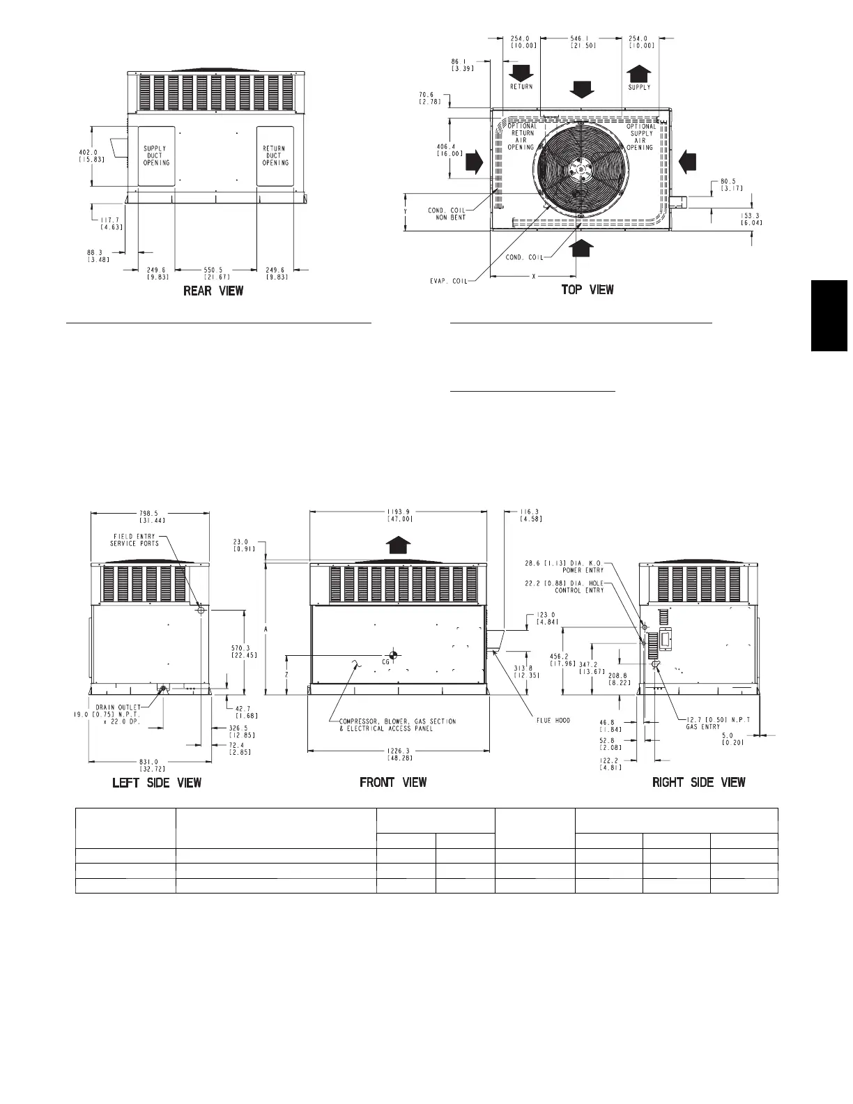
REQ’D CLEARANCES FOR OPERATION AND SERVICING. in. (mm)
Evaporator coil access side ..................36(914)
Power entry side (except for NEC requirements) .........36(914)
Unit top ..........................48(1219)
Side opposite ducts .....................36(914)
Duct panel ........................12(304.8)*
*Minimum distances: If unit is placed less than 12 in. (304.8 mm) from wall
system, then the system performance may be compromised.
REQ’D CLEARANCES TO COMBUSTIBLE MAT’L. in. (mm)
Top of unit .........................14(355.6)
Duct side of unit .......................2(50.8)
Side opposite ducts .....................14(355.6)
Bottom of unit .......................0.50 (12.7)
Flue panel .........................36(914.4)
NEC REQ’D CLEARANCES. in. (mm)
Between units, power entry side ..............42(1066.8)
Unit and ungrounded surfaces, power entry side .........36(914)
Unit and block or concrete walls and other grounded
surfaces, control box side .................42(1066.8)
LEGEND
CG - Center of Gravity
COND - Condenser
EVAP - Evaporator
NEC - National Electrical Code
REQ'D - Required
Note: Dimensions are in in. (mm)
C99017
UNIT
ELECTRICAL
CHARACTERISTICS
UNIT WEIGHT
UNIT HEIGHT
IN. [MM]
“A”
CENTER OF GRAVITY
IN. [MM]
lb kg X Y Z
48XP024--040/060 208/230--1--60 350 159 39.02[991.1] 20.0 [508] 19.3 [489] 17.6 [447]
48XP030--040/060 208/230--1--60 350 159 39.02[991.1] 20.0 [508] 19.3 [489] 17.6 [447]
48XP036--060/090 208/230--1--60, 208/230--3--60 388 176 41.02[1041.9] 20.0 [508] 14.0 [355.6] 13.0 [330.2]
Fig. 2 -- 48XP024--036 Unit Dimensions
48XP

Related product manuals