EasyManua.ls Logo

Case CX350B - Idler Wheel

Case CX350B
51 pages
Print Icon
To Next Page IconTo Next Page
To Next Page IconTo Next Page
To Previous Page IconTo Previous Page
To Previous Page IconTo Previous Page
Loading...
Issued 04-2010
1002-26
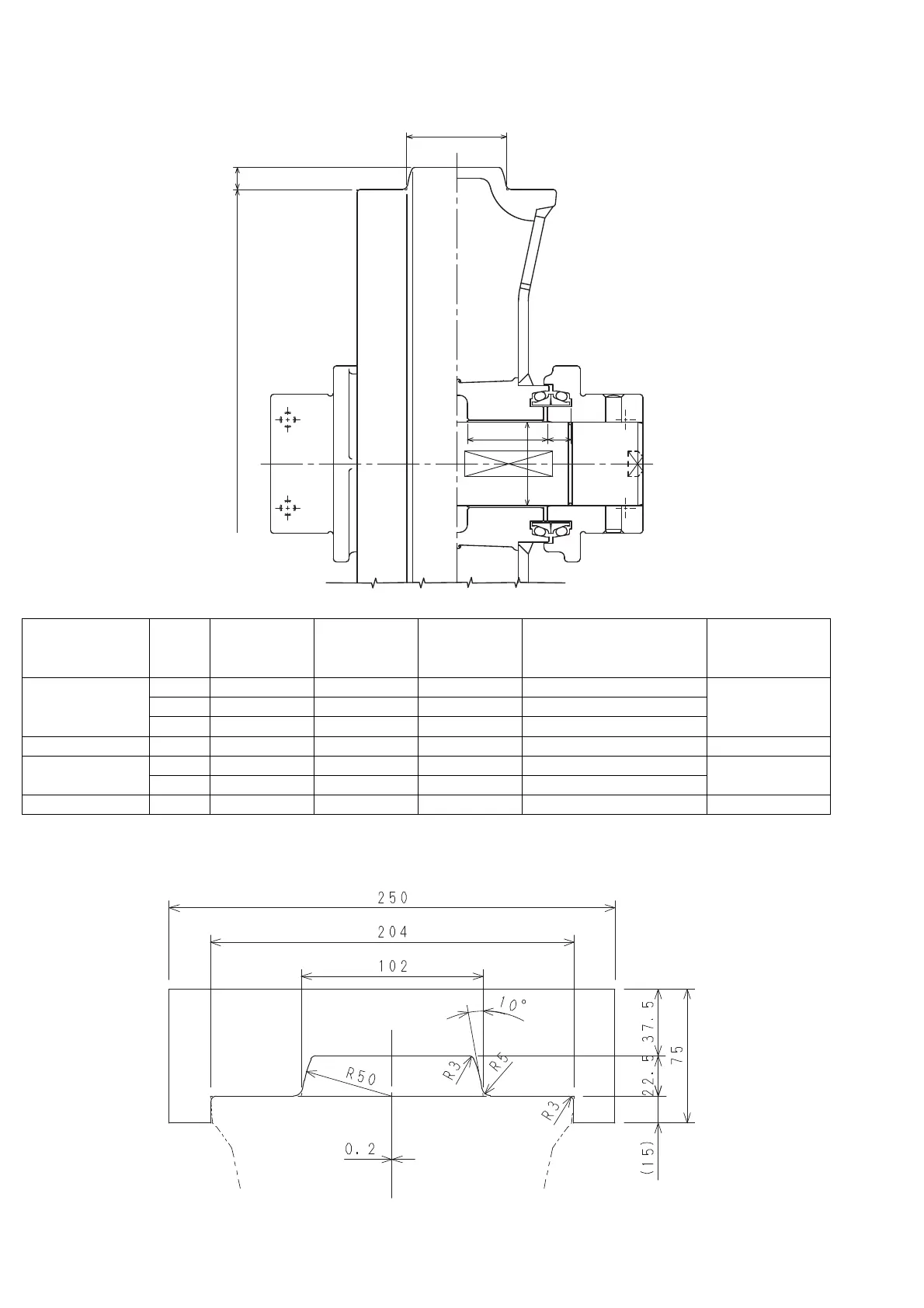
Idler wheel
Gauge
unit in mm
Part name Code
Measured
dimensions
(mm)
Standard
value (mm)
Usage limit
(mm)
Judgment Solution
Ilder wheel
a Ø Ø560 Ø550 Acceptable/Unacceptable
Cladding by welding
or replacement
b 22.5 Acceptable/Unacceptable
c 102 92 Acceptable/Unacceptable
Shaft d Ø Ø85 Ø84 Acceptable/Unacceptable Replacement
Bushing
d Ø Ø85 Ø86 Acceptable/Unacceptable
Replacement
e 82 81 Acceptable/Unacceptable
Hub f 24 23.6 Acceptable/Unacceptable Replacement
e
c
d
ab
f
300-6-10-03-03b

Related product manuals