EasyManua.ls Logo

Case CX350B - Lower Roller

Case CX350B
51 pages
Print Icon
To Next Page IconTo Next Page
To Next Page IconTo Next Page
To Previous Page IconTo Previous Page
To Previous Page IconTo Previous Page
Loading...
Issued 04-2010
1002-28
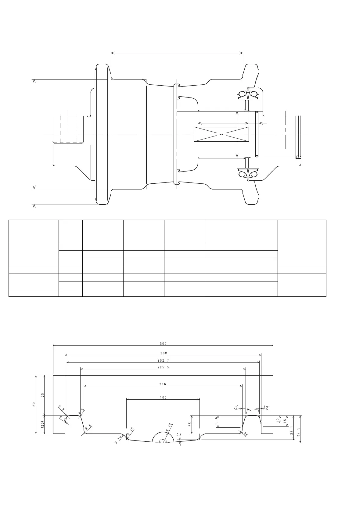
Lower roller
Gauge
unit in mm
Part name Code
Measured
dimensions
(mm)
Standard
value (mm)
Usage limit
(mm)
Judgment Solution
Track roller
a Ø Ø180 Ø170 Acceptable/Unacceptable
Cladding by welding
or replacement
b 25 20 Acceptable/Unacceptable
d 216 224 Acceptable/Unacceptable
Shaft e Ø Ø75 Ø74 Acceptable/Unacceptable Replacement
Bushing
e Ø Ø75 Ø76 Acceptable/Unacceptable
Replacement
f 82 81 Acceptable/Unacceptable
Collar g 17.5 17 Acceptable/Unacceptable Replacement
d
e
a
b
f g
300-6-10-03-03d

Related product manuals