EasyManua.ls Logo

Certikin MB35C - Schematic Wiring

Certikin MB35C
31 pages
Print Icon
To Next Page IconTo Next Page
To Next Page IconTo Next Page
To Previous Page IconTo Previous Page
To Previous Page IconTo Previous Page
Loading...
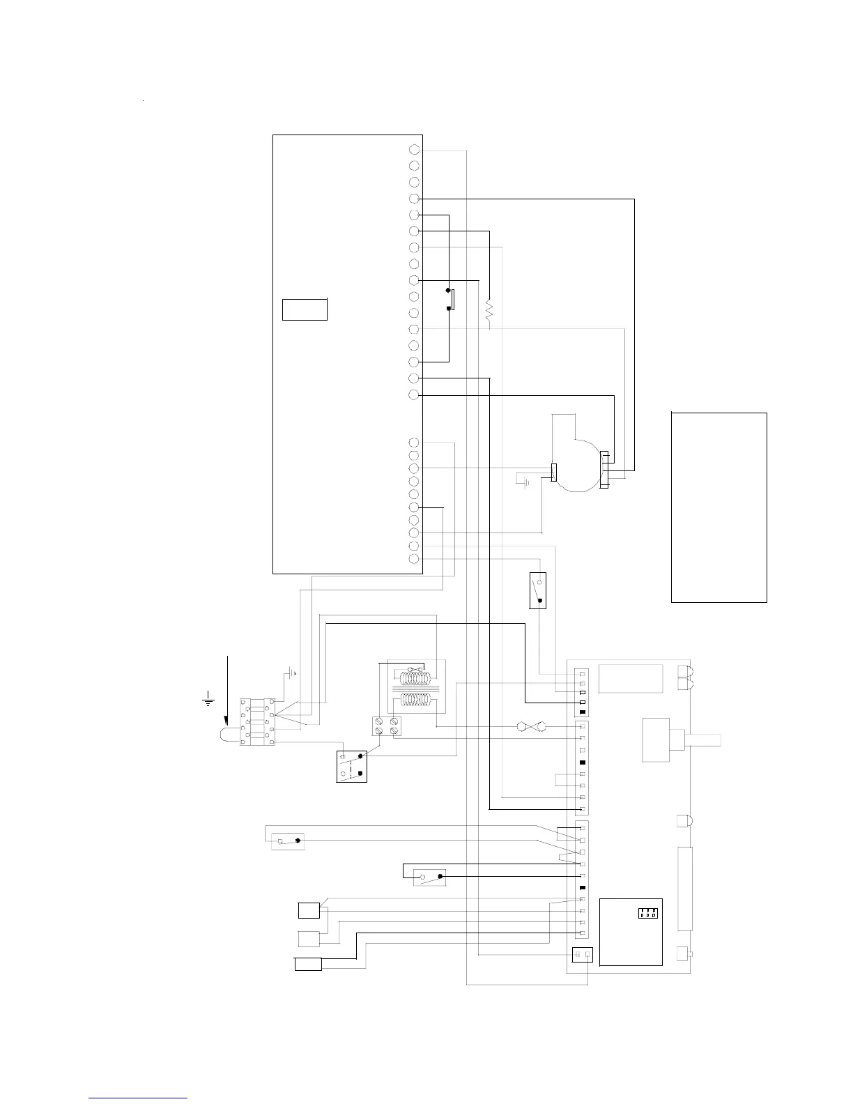
Fig.11.0
Condensing Pool Heater 19 30/11/06
Schematic Wiring
1234567891011121314151617181920
21
22
ON/OFF
SWITCH
WITH THERMAL FUSE
TRANSFORMER
24 V
Y
3 Amps
POOL SENSOR
Pool Thermostat
CONDENSATE PS
FLOW SENSOR
EXCHANGER SENSOR
2B
2C
230 V
Y
60C
X1.1
X1.3
X1.5
X1.8
X1.10
FAN
Br
B
X12.1
X12.8
X12.16
X12.3
X12.12
Hi Limit
X12.4
X12.14
X12.5
W
X12.11
Y
910 ohms
X12.13
Bk
B
1%
240v 3 Wire
X12.2
X12.10
X1.7
X1.9
X1.2
Flue
230V/50Hz
L
N
SL
LINK: Remove if seperate
switched live provided
WATER PRESSURE SWITCH
Gy
P
P
Gy
Gy
Bk
Or
V
P
R/B
R/B
Gy/Bk
P
V
Or
Gy
V
B
Br
G/Y
Br
B
Br
B
B
Y
Y
Bk
Br
Br
Bk
R
Gy
R
Bk
W
W
G
G
Gy/Bk
Bk
Bk
W
V
Gy
HEAT DEMAND
LOCKOUT ALARM
FAN 230v
L
N
N
FAN TACHO
RESET +ve
HI LIMIT
HI LIMIT
FAN PWM
MODULATION +ve
RESET -ve
FAN +ve
FAN -ve
MODULATION -ve
Gy/Bk
Br
B
2D
Bk Black
B Blue
Gy Grey
Gy/Bk Grey/Black
Br Brown
P Pink
V Violet
Y Yellow
R/B Red/Blue
Or Orange
W White
G/Y Green/Yellow
R Red
30/11/06
Stat
CVBC

Related product manuals