EasyManua.ls Logo

CESAB B 200 - HYDRAULIC CIRCUIT ELECTRIC CONTROL VALVE SPECIFICATIONS

CESAB B 200
460 pages
Print Icon
To Next Page IconTo Next Page
To Next Page IconTo Next Page
To Previous Page IconTo Previous Page
To Previous Page IconTo Previous Page
Loading...
14-12
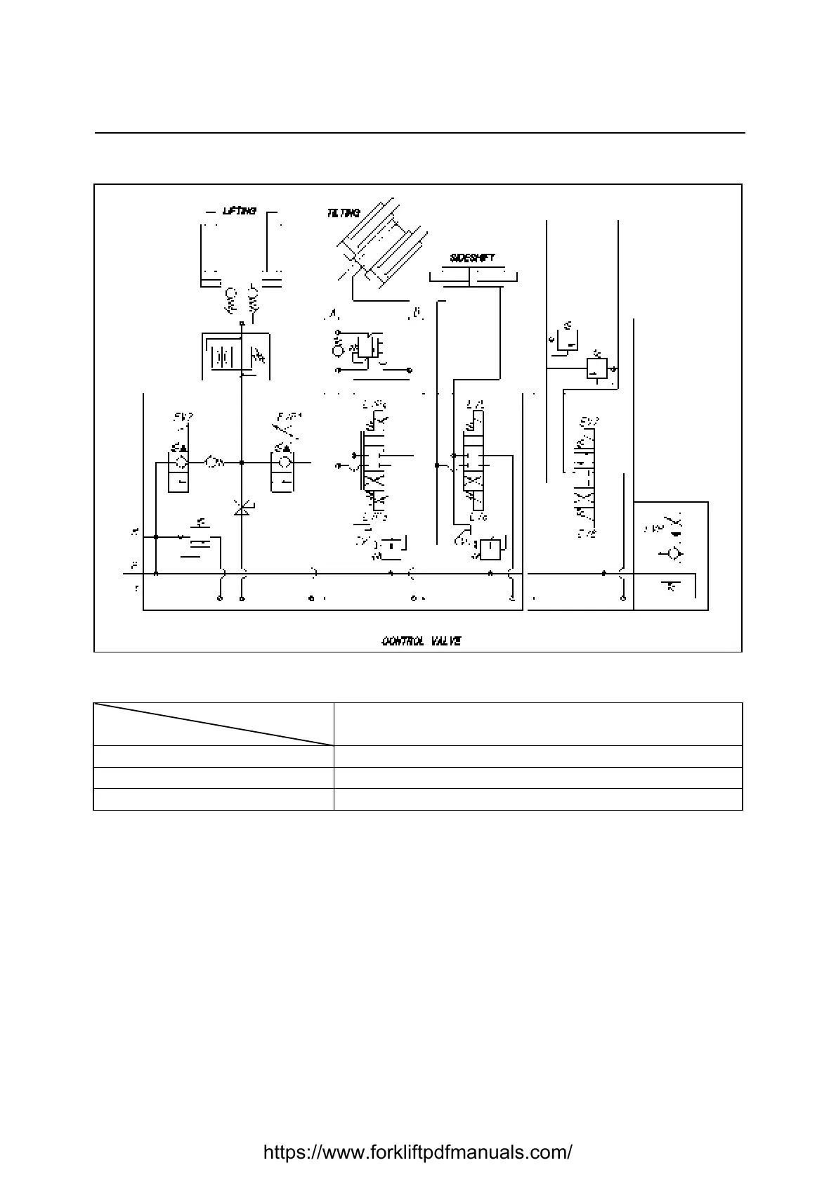
HYDRAULIC CIRCUIT ELECTRIC CONTROL VALVE
SPECIFICATIONS
Model
Article
All models
Type Elettrico
Maximum pressure Bar 175 ÷ 235
Other functions With proportional solenoid valve type ON / OFF
https://www.forkliftpdfmanuals.com/

Table of Contents