EasyManua.ls Logo

Cessna T188C - Page 606

Cessna T188C
624 pages
Print Icon
To Next Page IconTo Next Page
To Next Page IconTo Next Page
To Previous Page IconTo Previous Page
To Previous Page IconTo Previous Page
Loading...
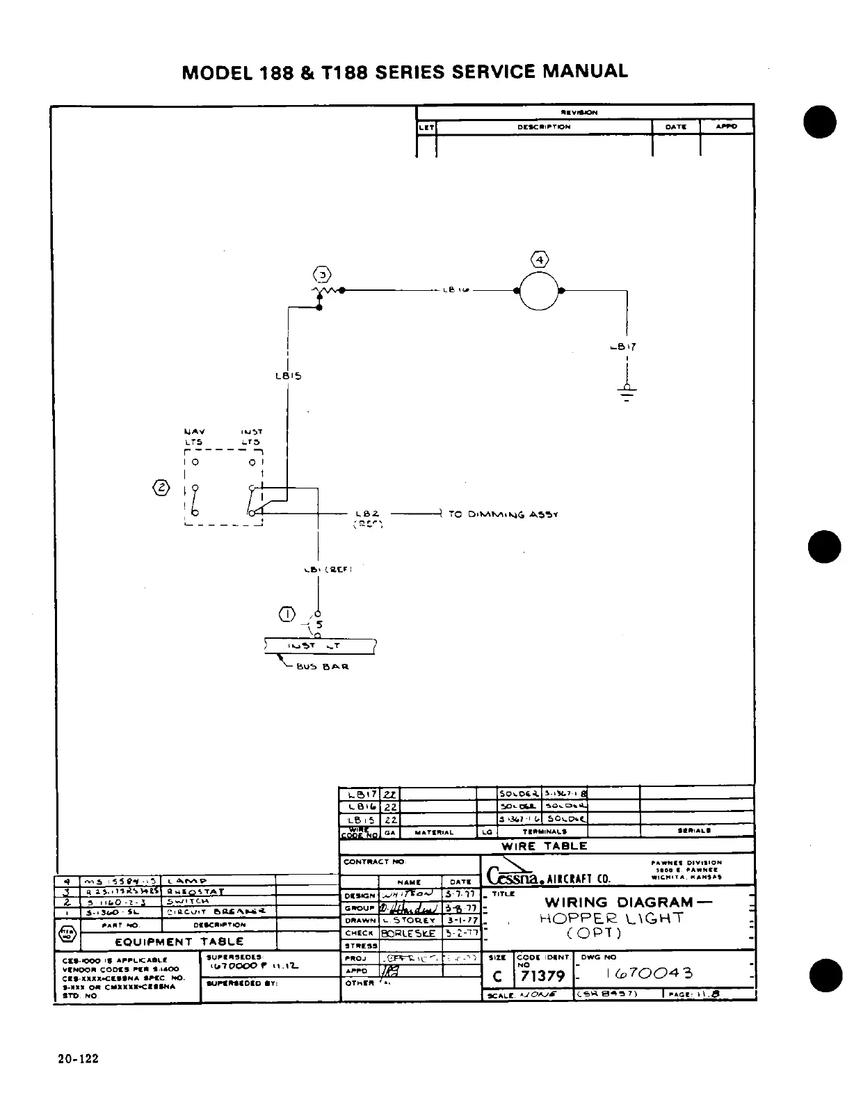
MODEL
188
&
T188
SERIES
SERVICE
MANUAL
i?
k4AY
LT4
l.r5
r-----
-I
I
5t
P T TA8LE_~~ _ __
WIRE
TABLE1
E)SSP
.NFRACT
OT
71T
S-NI7 O2Z C E
soWJ0ts
,.OtA
THE
SZO. NO
SCALE
AJLBlO
(
Z"
I
PGo-EI.O.
20S
,o.
rTO-122
WIRING
DIAGRAM-
A
,
~.ca
,,~.so
Dc^N
ST
,
,'
3-T|<1
77
.
»«O|*,R
_,'
IEQUIPM
ENT
TABLE
gT3SIOREE
5 2
(
P7
STRESS__________WIRE
TABLE
""NOooa
r
Cool,
1
4oa
n"7DC:Oo
r
Ii
'7-
-
--
D
C
o
1
0
0
..
c.xx...
sN
cPcc
aS.
S
c----------
CT
O-
r
71
379
|-
o
707043
39
2T0o
O2cAL2
|C SF5
)
I
IA
A
1
7
20-122

Table of Contents

Related product manuals