EasyManua.ls Logo

Chamberlain Swing GATE - Gate Arm Installation

Chamberlain Swing GATE
54 pages
Print Icon
To Next Page IconTo Next Page
To Next Page IconTo Next Page
To Previous Page IconTo Previous Page
To Previous Page IconTo Previous Page
Loading...
Rev C Doc 6001242 (01-20273) 11 of 53
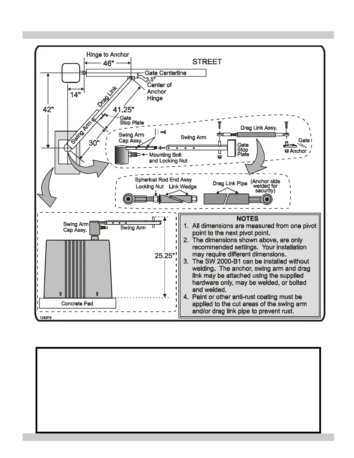
G. GATE ARM INSTALLATION
Figure 6. Gate Arm Installation.
1. Attach gate anchor to gate by welding or using hardware (not supplied).
2. Using manual controls, move the swing arm cap assembly until it points roughly to the
anchor as shown in Figure 6.
3. Measure and cut the swing arm to length. Attach swing arm to swing arm cap assembly
with gate stop on driveway side, using supplied hardware or by welding.
WARNING: Installing gate stop on the wrong side will cause damage to the gate operator.
4. Measure and cut Drag Link pipe to length, then insert spherical rod end assembly into pipe
and tighten locking nut.
5. Attach welded end of Drag Link Assembly to Anchor and unwelded end to Swing Arm.

Table of Contents

Related product manuals