EasyManua.ls Logo

Chamberlain Swing GATE - Part 1 Site Preparation; Location and Layout

Chamberlain Swing GATE
54 pages
Print Icon
To Next Page IconTo Next Page
To Next Page IconTo Next Page
To Previous Page IconTo Previous Page
To Previous Page IconTo Previous Page
Loading...
Rev C Doc 6001242 (01-20273) 5 of 53
PART 1
SITE PREPARATION
A. LOCATION AND LAYOUT
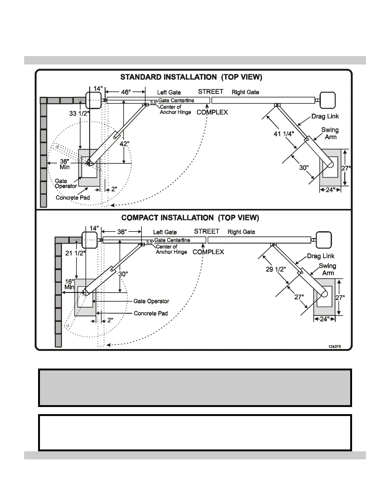
Figure 1. Gate Operator Layout Options.
NOTES
Left Gate and Right Gate are determined by looking from inside the complex toward the street.
Figure 1 shows a typical Bi-Parting gate in standard and compact installations.
1. Always install gate operators inside of the fence line, NEVER on the public side of the fence.
2. Mount all manual controls and activating devices at least 6 ft. away from the gate for safety.
3. Allow enough clearance around the gate and the gate operator for installation and service.

Table of Contents

Related product manuals