EasyManua.ls Logo

Chamberlain Swing GATE - Connecting Input Wiring

Chamberlain Swing GATE
54 pages
Print Icon
To Next Page IconTo Next Page
To Next Page IconTo Next Page
To Previous Page IconTo Previous Page
To Previous Page IconTo Previous Page
Loading...
Rev C Doc 6001242 (01-20273) 19 of 53
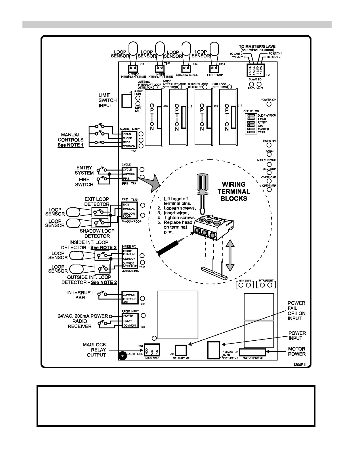
L. CONNECTING INPUT WIRING
Figure 12. Control Board Wiring.
1. Remove the plastic control box cover. See NOTES, next page, before proceeding.
2. Wire all external control devices to their connections on the control board as shown.
See Appendix A for details on how each control input affects the gate operator.
3. Connect the Master/Slave interconnect cable (see Part 3).

Table of Contents

Related product manuals