EasyManua.ls Logo

Charder MS-2500 - Ms 2500 Parts & Assembly

Charder MS-2500
35 pages
Print Icon
To Next Page IconTo Next Page
To Next Page IconTo Next Page
To Previous Page IconTo Previous Page
To Previous Page IconTo Previous Page
Loading...
27
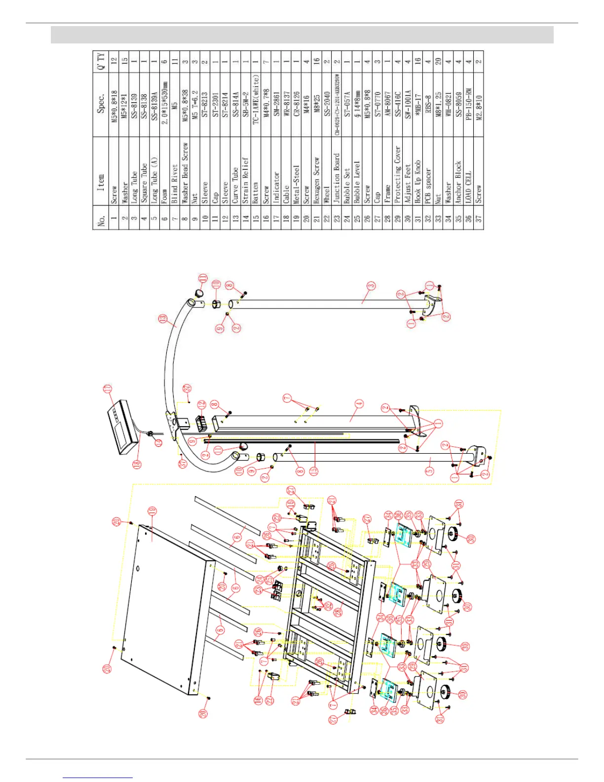
MS 2500 PARTS & ASSEMBLY
Please refer to P.30 for the list of spare parts.

Other manuals for Charder MS-2500

Related product manuals