EasyManua.ls Logo

CIGWELD WeldSkill 185 - Appendix 2: Weldskill 185 Circuit Diagram

CIGWELD WeldSkill 185
88 pages
Print Icon
To Next Page IconTo Next Page
To Next Page IconTo Next Page
To Previous Page IconTo Previous Page
To Previous Page IconTo Previous Page
Loading...
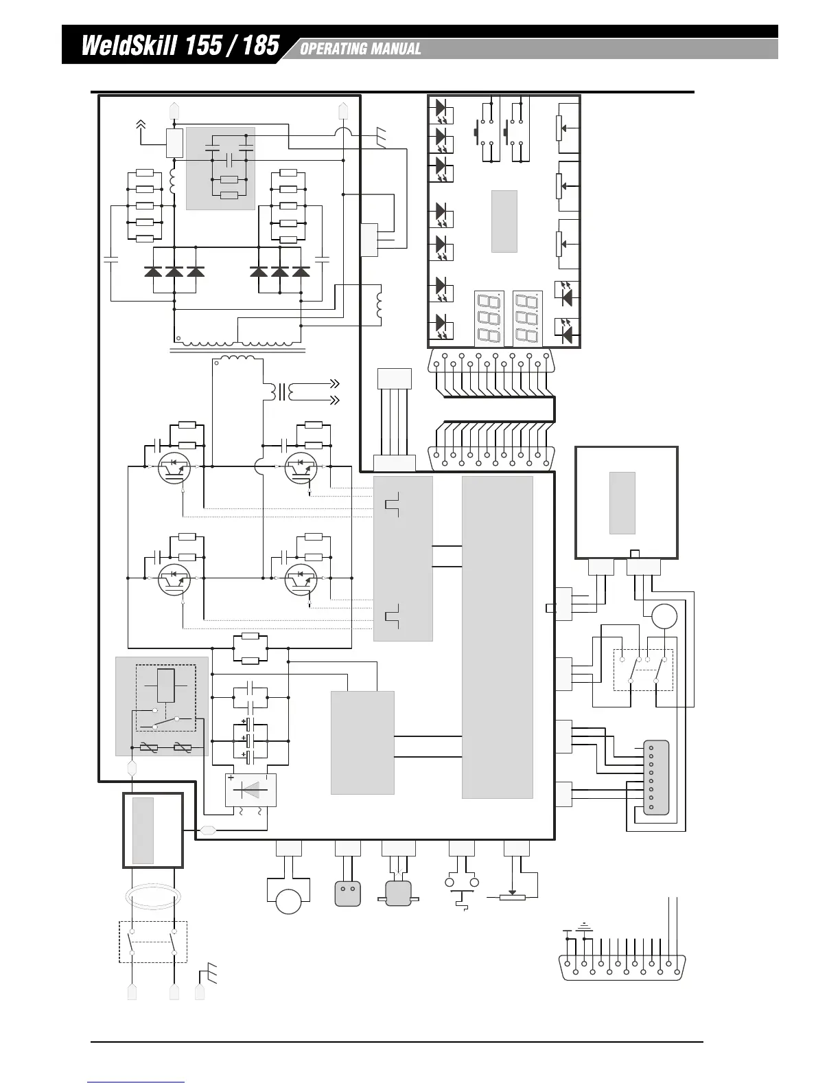
APPENDIX A-2 0-5492
APPENDIX 2: WELDSKILL 185 CIRCUIT DIAGRAM
Art # A-13455_AB
S1
INPUT
240V AC
A
N
E
EMC Board
N1
P7
P5
B1
C21
C22
C23 C25
R43
R44
G1
G2G3
G4
E1
E2E3
E4
R38
C20
C18
C33
C34
R37 R36R35
R60
R55 R57R56
Q5
Q9Q8
Q6
E2E4G2G4E3G3E1G1
Driving Signal
Driving Circuit
DC Power Input
Auxiliary Power Supply
SCM: Timing Control Interface Circuit
Main Board
4
1
2
3
5
T1
R157
C1
R23
C12
R100R4
R28
R29
T2
D8
D3
R3R1
R158
R32
+
-
D1
D9
FS
1
2
CN1
9
7
5
3
1
8
6
4
2
11
10
13
12
14
CN5
9
7
5
3
1
8
6
4
2
11
10
13
12
14
CN5
Display Circuit
Display Board
Sample Feedback
340V DC
0V
POSITIVE
NEGATIVE
240V AC
+24V
GND
C6
C4
C10
R14
R15
Absorption Circuit
RT1
RT2
J1/J3
Slow Start Circuit
EMC Filter Circuit
M1
C71
Wire Feed Circuit
D5
D6
L3/L4
DS1
DS2
VRD-OFF
LED9
VRD-ON
LED8
OVER TEMP
LED5
POWER
LED1
MIG
LED2
TIG
LED3
STICK
LED4
2TLED6 4TLED7 VR1 VR2 VR3
K1
K2
1
2
H1
CN11
12
1
2
3
4 5 6 7 8
H2
1
2
CN7
1
2
3
CN3
Q5
1
2
CN6
T.r1
+24V
1
2
CN10
VR4
1
2
3
CN1
Filter Circuit
S2
3
4
1
2
5
6
WF
CN12
123
CN13
123
1
2
CN2
CN4
123
Filter Board
1
2
3
4
CN8
Hall
Connect to CN8
Hall
Red
Yellow
Blue
Black
+
-
M
0
Output Current Feedback
CN9
123
S1: Power Switch
N1: Filter inductance
B1: Rectifier
RT1/RT2: PTC
J1/J3: Relay
R43/R44: Discharge Resistor
Q5/Q6/Q8/Q9: IGBT
FS: Fan
H1: Local Torch Signal
Q5: Magnetic Valve
T.r1: Thermostat
VR4: Burnback
H2: Avation Socket
S2: Local/Remote Switch
WF: Wire Feeder
Hall: Hall Sensor
T2: Auxiliary Inductor
T1: Main Transformer
M1: Current Transformer
9
7
5
3
1
8
6
4
2
11
10
13
12
14
CN5
+5V
CLK
DIO
INT2
CS
A1
A2
A1
A2
Voltage Adjust
Current Adjust
C21/C22/C23/C25/C71: DC Filter Capacitor
C20/R37/R38: Q5 (RC Absorption)
C18/R35/R36: Q6 (RC Absorption)
C33/R55/R60: Q8 (RC Absorption)
C34/R56/R57: Q9 (RC Absorption)
R14/R15/C4/C6/C10: Absorptiong Circuit
D1/D3/D5/D6/D8/D9: FRD
K1: 2T/4T
K2: MIG/TIG/STICK
DS1: Current Display
DS2: Voltage Display
VR1: Current Adjust
VR2: Voltage Adjust
VR3: Arc Control

Table of Contents

Related product manuals