EasyManua.ls Logo

Circutor CVM-A1000 - 3�5�7�- Three-Phase Network Measurement with a 3-Wire Connection and Trans; FORMERS with an ARON CONNECTION (CVM-A1 X00-ITF)

Circutor CVM-A1000
378 pages
Print Icon
To Next Page IconTo Next Page
To Next Page IconTo Next Page
To Previous Page IconTo Previous Page
To Previous Page IconTo Previous Page
Loading...
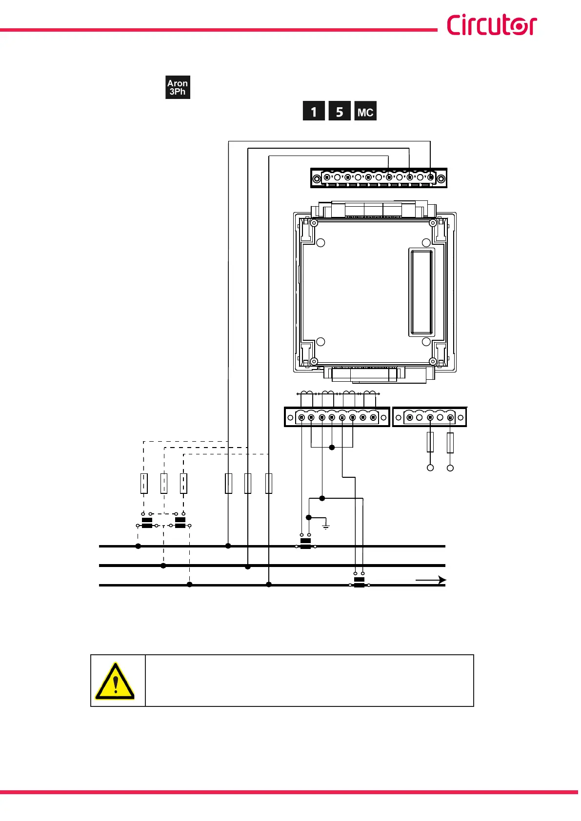
3�5�7�- THREE-PHASE NETWORK MEASUREMENT WITH A 3-WIRE CONNECTION AND
TRANSFORMERS WITH AN ARON CONNECTION (CVM-A1x00-ITF)�
Measurement system:
Secondary winding of the current transformer: (MC1 type transformer)
Power
Supply
VL1 VL2
VL3
L1
L2
L3
N V
L3 L2
V
L1
V
VL1 VL2 VL3
a
b
A B
a
b
A B
S1
S2
S1 S2
S1
S2
L1
P1
P2
L2
L3
P1
P2
P1 P2
S1 S2
LN
P1
P2
NV
REF REF
S1 S2
P1
P2
S1
S2
P1
P2
POWER SUPPLY
LOAD
Figure 11: Three-phase measuring with a 3-wire connection and transformers in an ARON connection (transformer
secondary: /1A, /5A or MC1 (/0�250))�
The MC1 transformer secondary value is set to 0.250 A
23
Instruction Manual
CVM-A1000 - CVM-A1500

Table of Contents

Related product manuals