EasyManua.ls Logo

Cisco Nexus 93180YC-FX3 - Installing the Airflow Sleeve (N9 K-AIRFLOW-SLV)

Cisco Nexus 93180YC-FX3
70 pages
To Next Page IconTo Next Page
To Next Page IconTo Next Page
To Previous Page IconTo Previous Page
To Previous Page IconTo Previous Page
Loading...
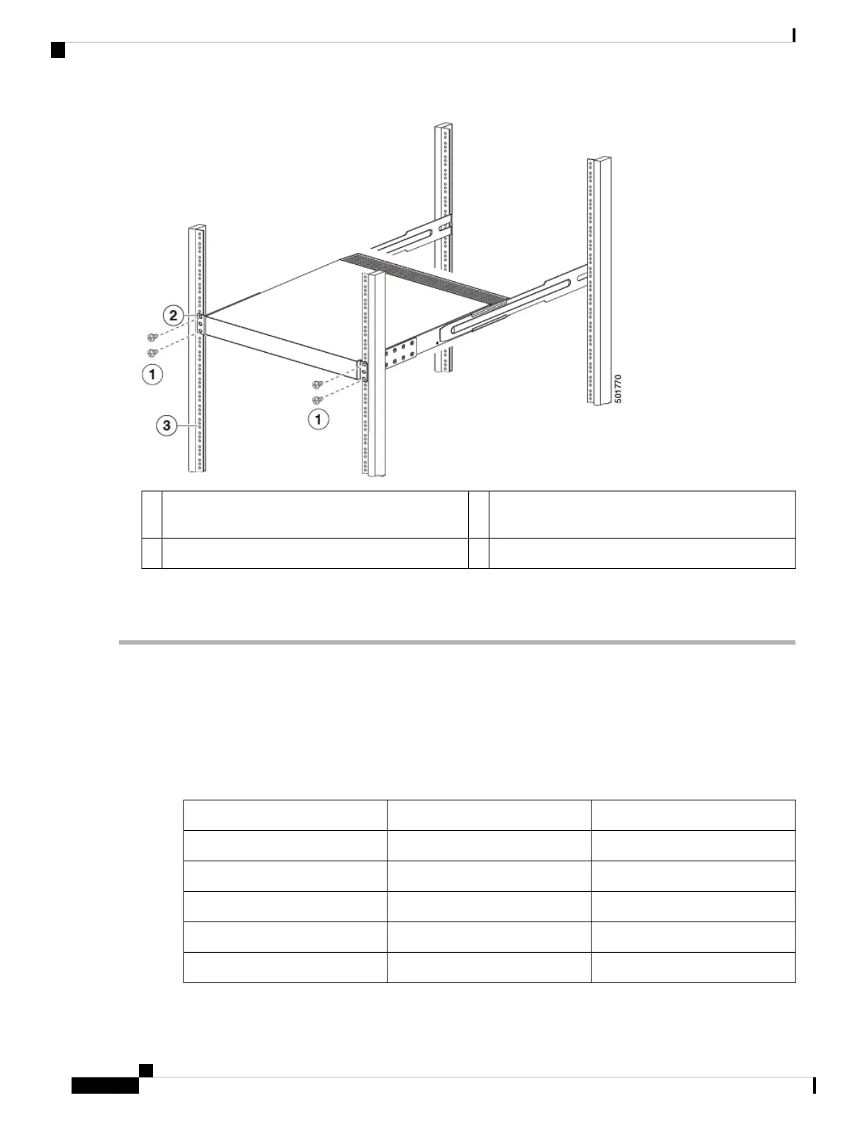
Mounting rails on rack or cabinet posts.3Fasten the chassis to the front of the rack with two
12-24 or 10-32 screws on each side.
1
Front-mount bracket.2
d) Tighten the 10-32 screws to 20 in-lb (2.26 N·m) or tighten the 12-24 screws to 30 in-lb (3.39 N·m).
Step 6 If you attached a grounding wire to the chassis grounding pad, connect the other end of the wire to the facility ground.
Installing the Airflow Sleeve (N9K-AIRFLOW-SLV)
The airflow sleeve (N9K-AIRFLOW-SLV) is installed to allow proper airflow, so that the switch is properly
cooled. This airflow sleeve is only compatible with rack mount kit (N3K-C3064-ACC-KIT).
Table 3: Airflow Sleeve (N9K-AIRFLOW-SLV) Minimum and Maximum Rack Rail Depth.
Maximum Rack DepthMinimum Rack DepthChassis
748.25 mm636.49 mmN9K-C92348GC-X
916.60 mm824.80 mmN9K-C9316D-GX
898.70 mm794.20 mmN9K-C9332C
915.80 mm824.00 mmN9K-C9332D-GX2B
903.98 mm802.39 mmN9K-C9336C-FX2
Cisco Nexus 93180YC-FX3 ACI-Mode Switch Hardware Installation Guide
26
Installing the Switch Chassis
Installing the Airflow Sleeve (N9K-AIRFLOW-SLV)

Table of Contents

Other manuals for Cisco Nexus 93180YC-FX3

Related product manuals