EasyManua.ls Logo

Cisco Nexus 9348GC-FXP - Hardware Features Identification

Cisco Nexus 9348GC-FXP
72 pages
To Next Page IconTo Next Page
To Next Page IconTo Next Page
To Previous Page IconTo Previous Page
To Previous Page IconTo Previous Page
Loading...
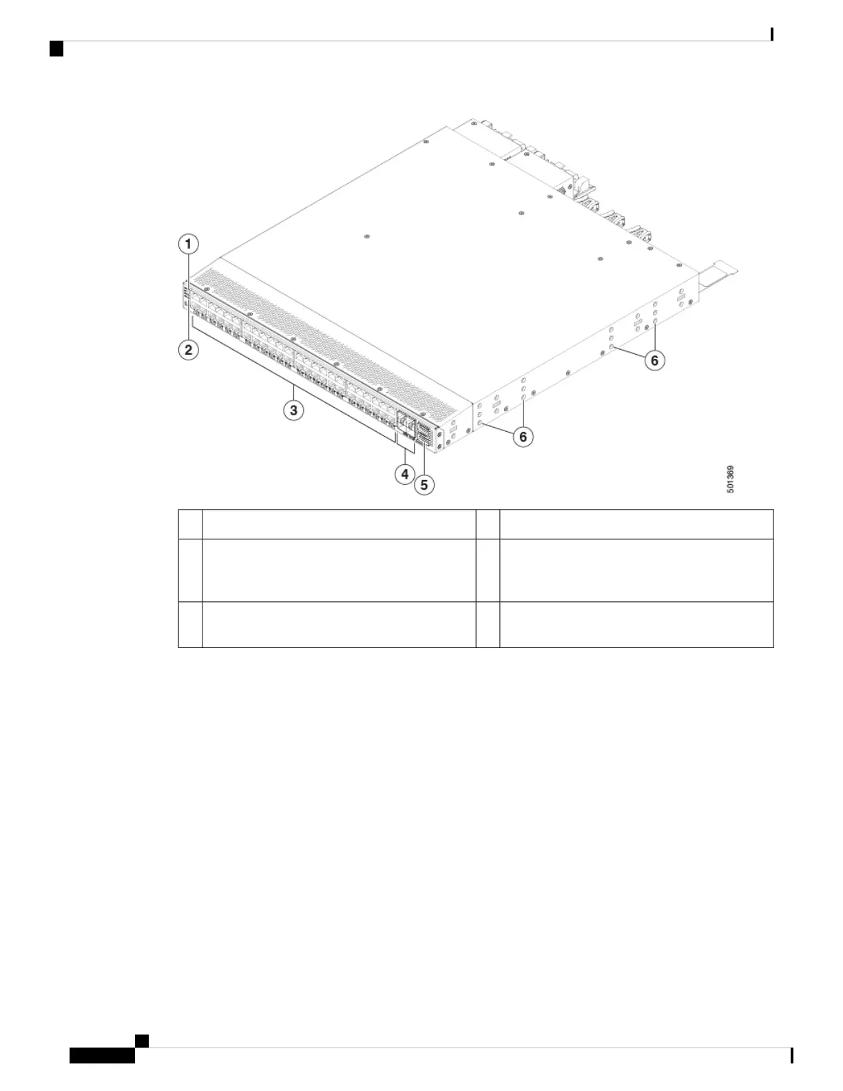
10-/25-Gigabit SFP28 host ports (4)4Port lane select button1
40-/100-Gigabit QSFP28 uplink ports (2)5Chassis LEDs (Beacon [BCN], Status [STS],
Environment [ENV], and Power over Ethernet
[PoE])
2
Screw holes (6) for attaching rack mounting
brackets
610/100-/1000-Megabit 1GBASE-T host ports
(48)
3
To determine which transceivers, adapters, and cables this switch supports, see the Cisco Transceiver Modules
Compatibility Information document.
The following figure shows the hardware features seen from the power supply side of the chassis.
Cisco Nexus 9348GC-FXP ACI Mode Hardware Installation Guide
2
Overview
Overview

Table of Contents

Related product manuals