EasyManua.ls Logo

Cisco Nexus 93600CD-GX - Clearance Requirements

Cisco Nexus 93600CD-GX
62 pages
Print Icon
To Next Page IconTo Next Page
To Next Page IconTo Next Page
To Previous Page IconTo Previous Page
To Previous Page IconTo Previous Page
Loading...
Statement 1048Rack Stabilization
The rack stabilizing mechanism must be in place, or the rack must be bolted to the floor before installation
or servicing. Failure to stabilize the rack can cause bodily injury.
Warning
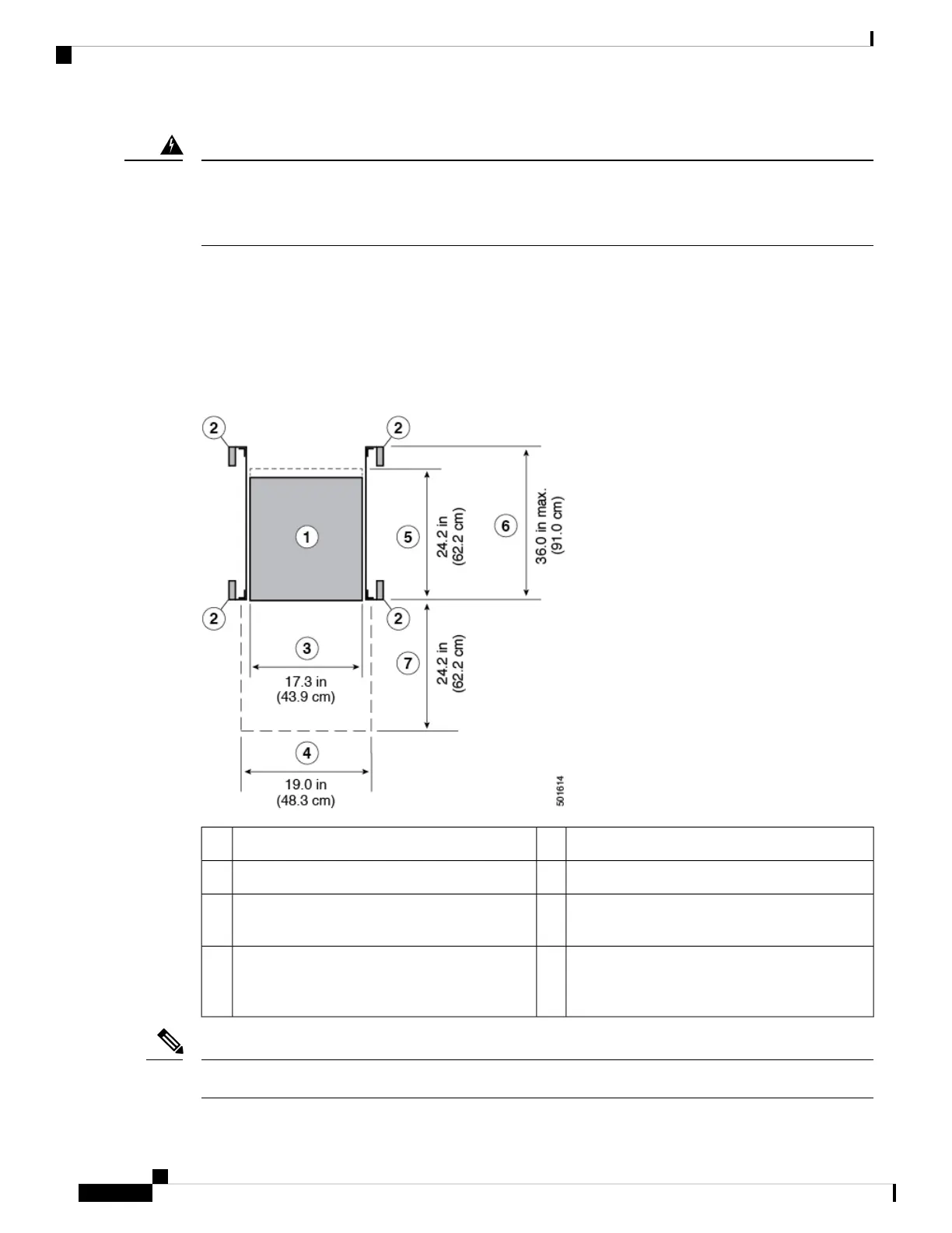
Clearance Requirements
Provide the chassis with adequate clearance between the chassis and any other rack, device, or structure so
that you can properly install the chassis. Provide the chassis with adequate clearance to route cables, provide
airflow, and maintain the switch. For the clearances required for an installation of this chassis in a four-post
rack, see the following figure.
Depth of the chassis5Chassis1
Maximum extension of the bottom-support rails6Vertical rack-mount posts and rails2
Depth of the front clearance area (equal to the
depth of the chassis).
7Chassis width3
Width of the front clearance area (equal to the
width of the chassis with two rack-mount
brackets that are attached to it).
4
Both the front and rear of the chassis must be open to both aisles for airflow.
Note
Cisco Nexus 93600CD-GX ACI-Mode Switch Hardware Installation Guide
12
Preparing the Site
Clearance Requirements

Table of Contents

Related product manuals