EasyManua.ls Logo

ClimateMaster Tranquility TR Series - Page 63

ClimateMaster Tranquility TR Series
96 pages
Print Icon
To Next Page IconTo Next Page
To Next Page IconTo Next Page
To Previous Page IconTo Previous Page
To Previous Page IconTo Previous Page
Loading...
63
THE SMART SOLUTION FOR ENERGY EFFICIENCY
Tranquility
®
(TR) Series
Rev.: November 2, 2020
climatemaster.com
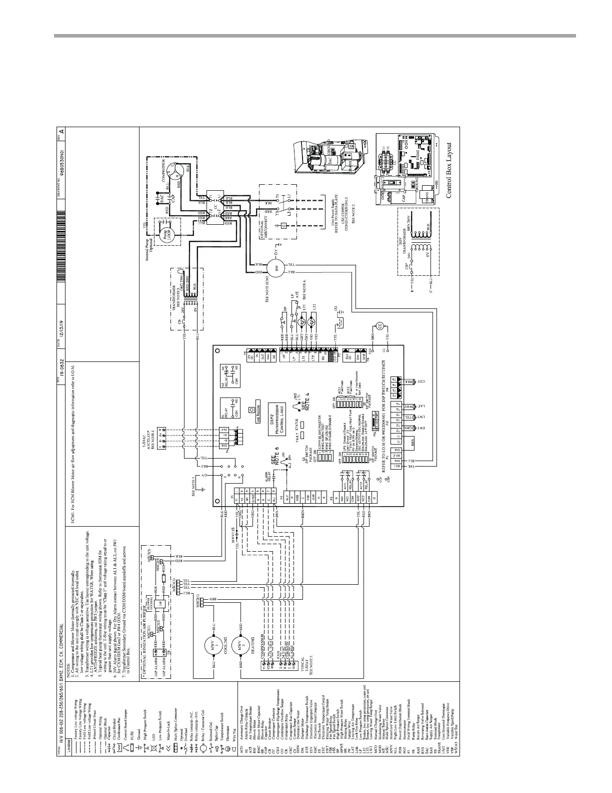
Single Phase TR Unit Sizes 015 - 060 with CXM Controller, CT ECM Fan Motor
and Hydronic Heating

Related product manuals