EasyManua.ls Logo

Cold Jet P1500 - Know Your Machine: Front View

Default Icon
32 pages
Print Icon
To Next Page IconTo Next Page
To Next Page IconTo Next Page
To Previous Page IconTo Previous Page
To Previous Page IconTo Previous Page
Loading...
Operation Manual P750/P1500/P3000
Cold Jet, LLC Page 15
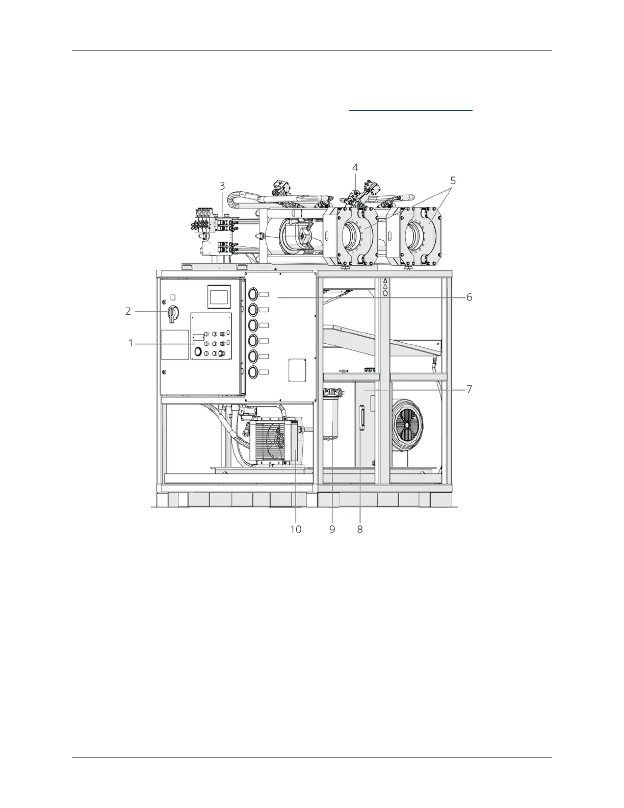
Know Your Machine
For illustrative purposes, only the P1500 is shown. See About these Instructions for more
information.
Front
1. Control Panel
2. Main Power Switch
3. Chamber Pressure Switches
4. Top Injector Valve
5. Extrusion Cylinders
6. Gauges Panel
7. Hydraulic Oil Tank
8. Sight Gauge

Related product manuals