EasyManua.ls Logo

CombiLift C2500CB - Page 64

Default Icon
127 pages
Print Icon
To Next Page IconTo Next Page
To Next Page IconTo Next Page
To Previous Page IconTo Previous Page
To Previous Page IconTo Previous Page
Loading...
Operation
63
C2500CB-OM-EN-16
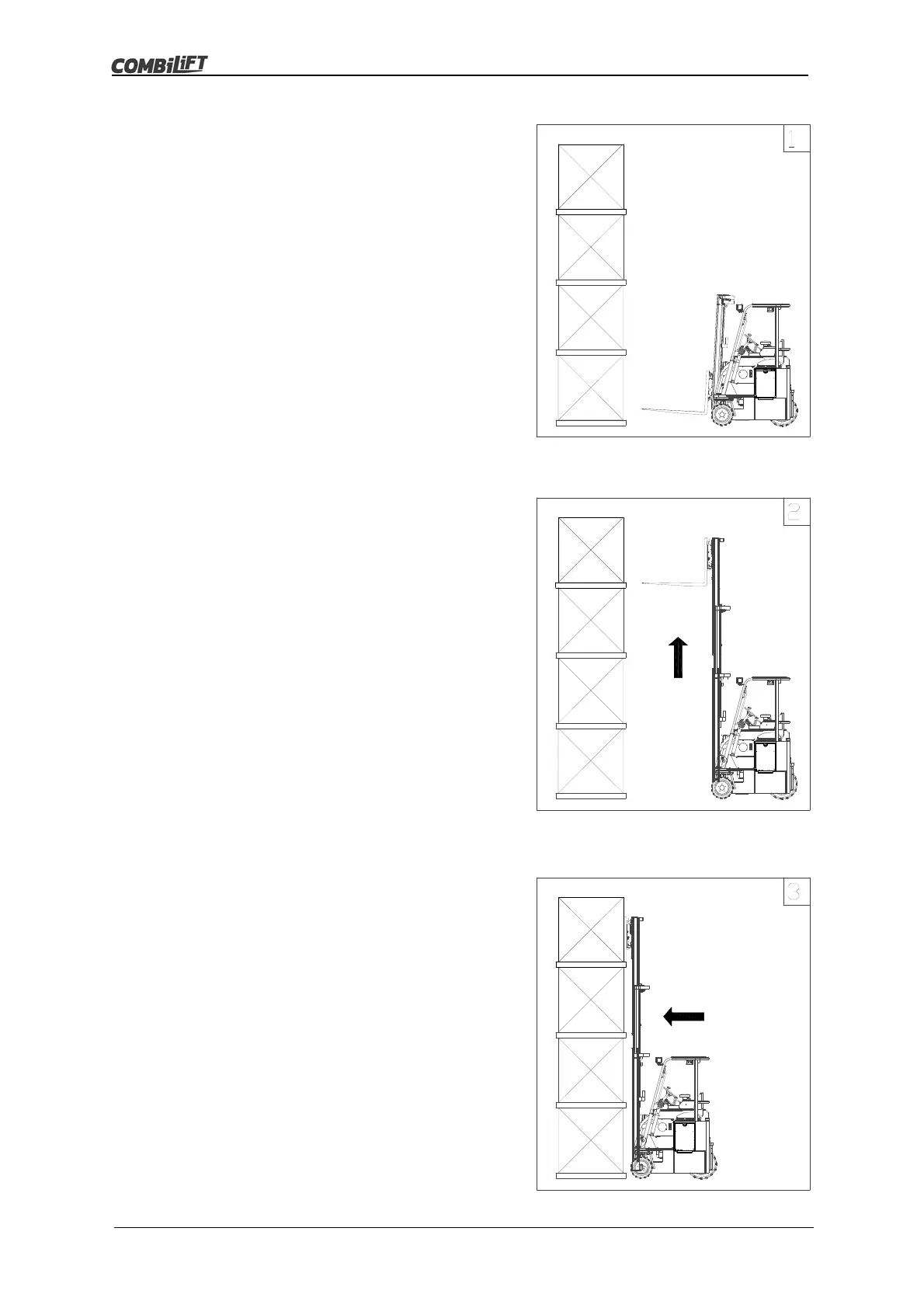
De-stacking a Load
Slowly approach the load with the mast in
the safe travel position.
The truck may be driven in sideward mode
and side shift may be used to align the forks
perfectly with the load if necessary.
Apply the park brake and select neutral.
Level the forks using the tilt function.
Check overhead to make sure there is
adequate headroom before lifting. Pay
attention to the highest point (this may be
on a load backrest if fitted).
Lift the forks to the required height to enter
the pallet/load cleanly.
Gradually operate the accelerator pedal to
give the required lift speed.
Fully press the brake/inch pedal, select
forward and release the park brake.
Press the accelerator pedal lightly to
increase the engine speed then gradually
release the brake/inch pedal until the truck
begins to move forward slowly.
Make small steering corrections and/or use
side shift as required to position the forks
precisely (always apply the park brake and
select neutral before operating the
hydraulic controls).
Fully press the brake/inch pedal when the
fork heels gently touch the pallet/load. If it
looks like the forks are going to make
contact during entry stop and make the
necessary adjustments (always apply the
park brake and select neutral before
operating the hydraulic controls).
Apply the park brake and select neutral.
Check overhead to make sure there is
adequate headroom before lifting the load.
Pay attention to the highest point (this may
be on a load backrest if fitted).

Table of Contents

Related product manuals