EasyManua.ls Logo

Commend EE 8000 - Vertical direction; Mounting example; Mounting gland

Commend EE 8000
35 pages
Print Icon
To Next Page IconTo Next Page
To Next Page IconTo Next Page
To Previous Page IconTo Previous Page
To Previous Page IconTo Previous Page
Loading...
Industrial Stations EE 8000 Installation
3.1/0614 17
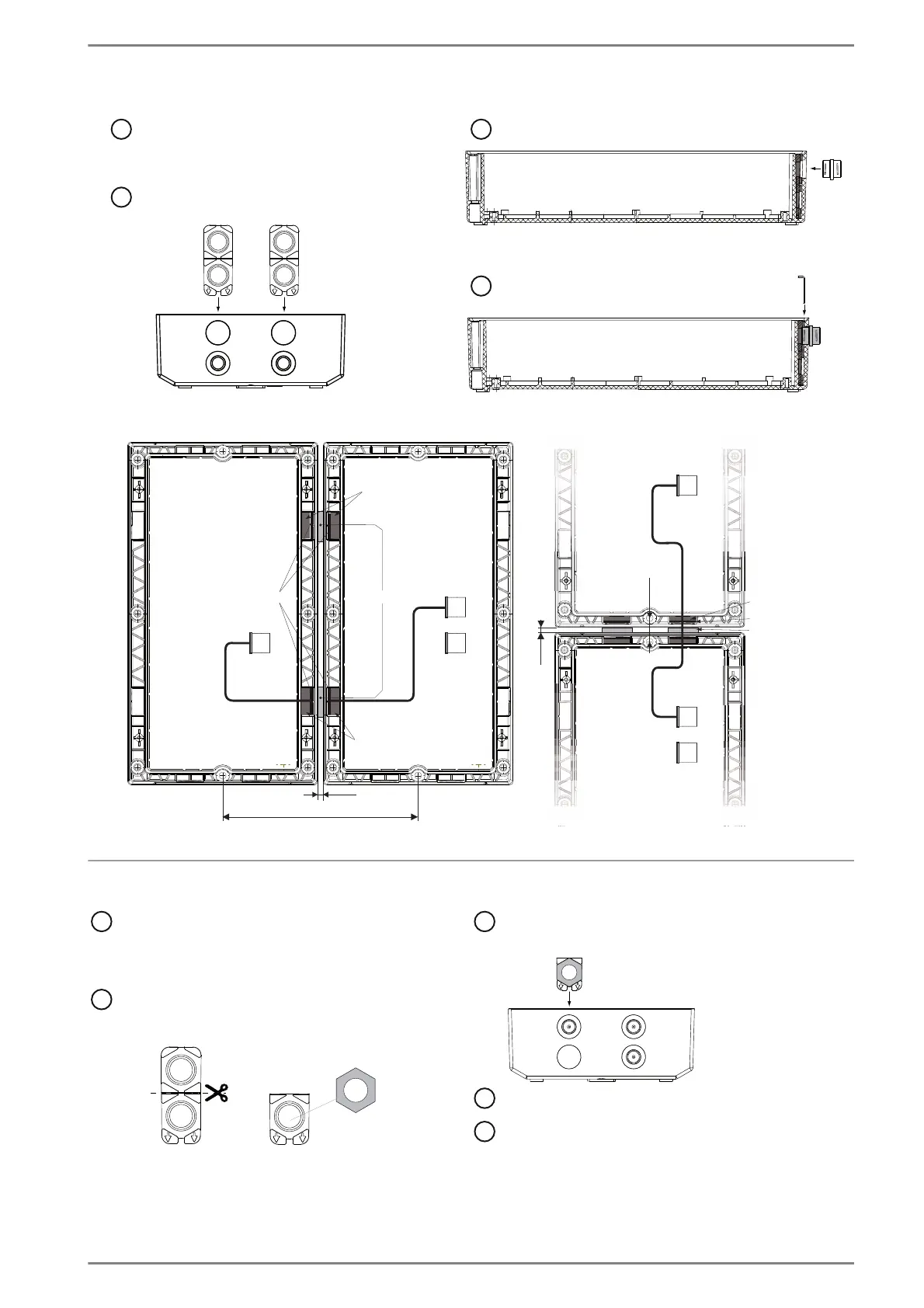
Vertical direction
Mounting example
Mounting gland
4
31
2
Fix the space ring with
the bracket
Before mounting, the two overhead openings
have to be broken out with a blunt object!
Put in the gasket into the mounting opening
(note mounting direction)
Put in the space ring with the flat side above
EE 8999M
EE 8999S
4 mm
(0.16 in)
from
EE 8999M
to next
EE 8999M
to
EE 8999M
gaskets
space rings
brackets
22 mm
(0.87 in)
EE 8999M EE 8999S
4 mm
(0.16 in)
gaskets
gaskets
brackets
space rings
connection cable
from
EE 8999M
to
EE 8999M
to next
EE 8999M
178 mm (7.0 in)
4
5
31
2
2)
1)
Fasten the gland
Before mounting, the expansion openings
have to be broken out with a blunt object!
Put the gasket + screw nut
into the mounting opening
(note mounting direction)
Close not-used expansion openings
with with dummy plugs
Note: The gland M20 (in extent of supply) is for mounting cables with a diameter of 4 mm to 9 mm (AWG 6 to AWG 00).
1
) Cut the gasket in half
(if one expansion opening is used)
2
) Put the screw nut into the used gask opening

Related product manuals